$325,000
For Sale
- ft²
8 rooms
Studio
1.5 baths
Co-op
- Riverdale
Resale
This home has been saved by 5 users.
Listing by Brown Harris Stevens, Real Estate Principal Office, 1934 Broadway, New York, NY 10023
Maintenance fees
$1,583/mo
Estimated payment
$3,197/mo
Legal disclaimerAll calculations are estimates provided by StreetEasy for informational purposes only. Actual amounts or financing terms may vary. Please contact your mortgage provider for specifics.Taxes
Included in maintenance fees
Tax abatement
No info
About
Seller’s agent
description
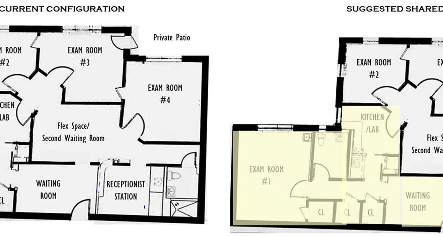
OFFICE SPACE WITH CORNER VISIBILITY
Ideally located at the highly trafficked corner of 256th Street & Riverdale Avenue with prominent outdoor signage, this rarely available office (the only one in the building) awaits a new owner.
Currently configured as a doctor's office with four windowed rooms (all with water hook-ups in place), a bonus windowed lab room or extended kitchen, two waiting rooms, a...
Policies
Sorry, policy info isn’t available right now. Check back later.
Home features
No info on home features
Building amenities
Services and facilities
Doorman
Elevator
Live-in super
Wellness and recreation
No info on wellness and recreation
Shared outdoor space
No info on shared outdoor space
About the building
5601 Riverdale Avenue
5601 Riverdale Avenue, Bronx, NY 10471
115 units
7 stories
1954 built
For sale
6 available units for saleFor rent
0 available units for rentDocuments and permits
View documents and permitsProperty history
- Price Change: ↓ $24,000 (-6.9%) on 5/20/25
- Days on market: 714 daysThis is the number of days the listing has been on StreetEasy.
| Date | Price | Event |
|---|---|---|
5/20/2025 | $325,000 | Price decreased by 7% |
4/7/2025 | $349,000 | Price increased by 7% |
3/4/2025 | $325,000 | Price decreased by 12% |
3/21/2024 | $369,000 | Listed by Brown Harris Stevens |
Sign in to take a closer look at how this home compares to similar homes.
Explore Riverdale
Transit
| Location | Distance |
|---|---|
1at Van Cortlandt Park–242nd St | 1.08 miles |
1at 238th St | 1.4 miles |
1at 231st St | 1.77 miles |
About Riverdale
Rental prices shown are base rent before any fees. Visit listings for cost and fees breakdown.
SalesMedian asking price
Studio
$170K
RentalsMedian asking base rent
Studio
$1,900
Riverdale was once a summer retreat for wealthy New Yorkers, who built large estates and Tudor-style mansions along the cliffs overlooking the Hudson River and the Palisades. Many of these properties still remain, which lends an upscale, polished atmosphere to the neighborhood's windy, tree-lined streets. Although certain pockets recall the tonier Westchester towns to the north, Riverdale is far more diverse. In addition to large single-family homes, Riverdale also features many co-op complexes, which offer more affordable housing options but the same easy, bucolic pace of life.
Learn more about Riverdale































































































































































