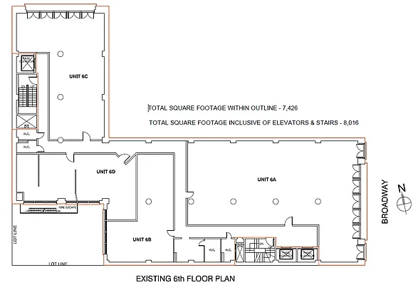
8,000 ft²
$811 per ft²
6 rooms
4 beds
4 baths
Co-op
- Soho
Resale
reported sale
Sold on 8/7/2025
Not yet verified by closing records
Seller's agent
This home has been saved by 74 users.
Listing by Nest Seekers International, Limited Liability Broker, 505 Park Avenue, New York, NY 10022
Maintenance fees
$17,976/mo
Estimated payment
$58,243/mo
Legal disclaimerAll calculations are estimates provided by StreetEasy for informational purposes only. Actual amounts or financing terms may vary. Please contact your mortgage provider for specifics.Taxes
Included in maintenance fees
Tax abatement
No info
About
Seller’s agent
description
An unparalleled offering awaits in the heart of prime Soho: an expansive 8,000 square foot residential loft, occupying the entire sixth floor of the historic "Little Singer Building" at 561 Broadway/88 Prince Street. This exceptional space, now officially designated for flexible joint live/work quarters use with an approved ALT 2 by the landmark preservation committee along with a full DOB approval (As of 3/26/25), offers the chance to craft a unique bespoke flexible live work home.
Policies
Pets allowed
Cats and dogs allowed
Home features
Central air
Dishwasher
Hardwood floors
Private outdoor space
Balcony
View
City
Washer/dryer
Building amenities
Services and facilities
Doorman
Virtual
Elevator
Wellness and recreation
No info on wellness and recreation
Shared outdoor space
No info on shared outdoor space
About the building
561 Broadway
561 Broadway, New York, NY 10012
14 units
12 stories
1904 built
For sale
1 available units for saleFor rent
0 available units for rentDocuments and permits
View documents and permitsProperty history
- Price Change: No changes
- Days on market: 158 daysThis is the number of days the listing has been on StreetEasy.
| Date | Price | Event |
|---|---|---|
8/7/2025 | $6,495,000 | Sold by Nest Seekers International |
8/6/2025 | $6,495,000 | Listed by Nest Seekers International |
8/4/2025 | $6,495,000 | Delisted by Nest Seekers International |
2/28/2025 | $6,495,000 | Listed by Nest Seekers International |
Past listing photos
Sign in to take a closer look at how this home compares to similar homes.
Explore Soho
Transit
| Location | Distance |
|---|---|
RWat Prince St | under 500 feet |
BDFM6at Broadway–Lafayette St | 0.11 miles |
6at Spring St | 0.13 miles |
BDFM6at Bleecker St | 0.16 miles |
CEat Spring St | 0.3 miles |
About Soho
Rental prices shown are base rent before any fees. Visit listings for cost and fees breakdown.
SalesMedian asking price
4 beds
$10.9M
RentalsMedian asking base rent
4 beds
$26,500
SoHo has some of the best people-watching in Manhattan, as it is a mecca for the trendy, sophisticated downtown elite. The north-south running streets are often sites of fashion shoots as well as home to upscale European boutiques. The east-west running streets are busier and always clogged with vendors selling everything from iPhone cases to incense. One you hit Broadway, you could be in just about any mall in America with retail chains, tourists, teenagers, and disgruntled New Yorkers dominating the avenue. The energy in SoHo is fast-paced and all hustle and bustle; it is a quintessentially vibrant New York neighborhood, but certainly not for the faint-of-heart or those looking for some peace and quiet.
Learn more about Soho


















































































































































