- ft²
11 rooms
6 beds
4 baths
House
- Riverdale
Resale
recorded sale
Sold on 1/7/2026
Verified by closing records
Last listed for $1,650,000
Seller's agent
This home has been saved by 5 users.
Listing by Trebach Realty, Corporate Broker, 475 West 238th Street, Bronx, NY 10463
Common charges
Not applicable
Estimated payment
$8,561/mo
Legal disclaimerAll calculations are estimates provided by StreetEasy for informational purposes only. Actual amounts or financing terms may vary. Please contact your mortgage provider for specifics.Taxes
No info
Tax abatement
No info
About
Seller’s agent
description
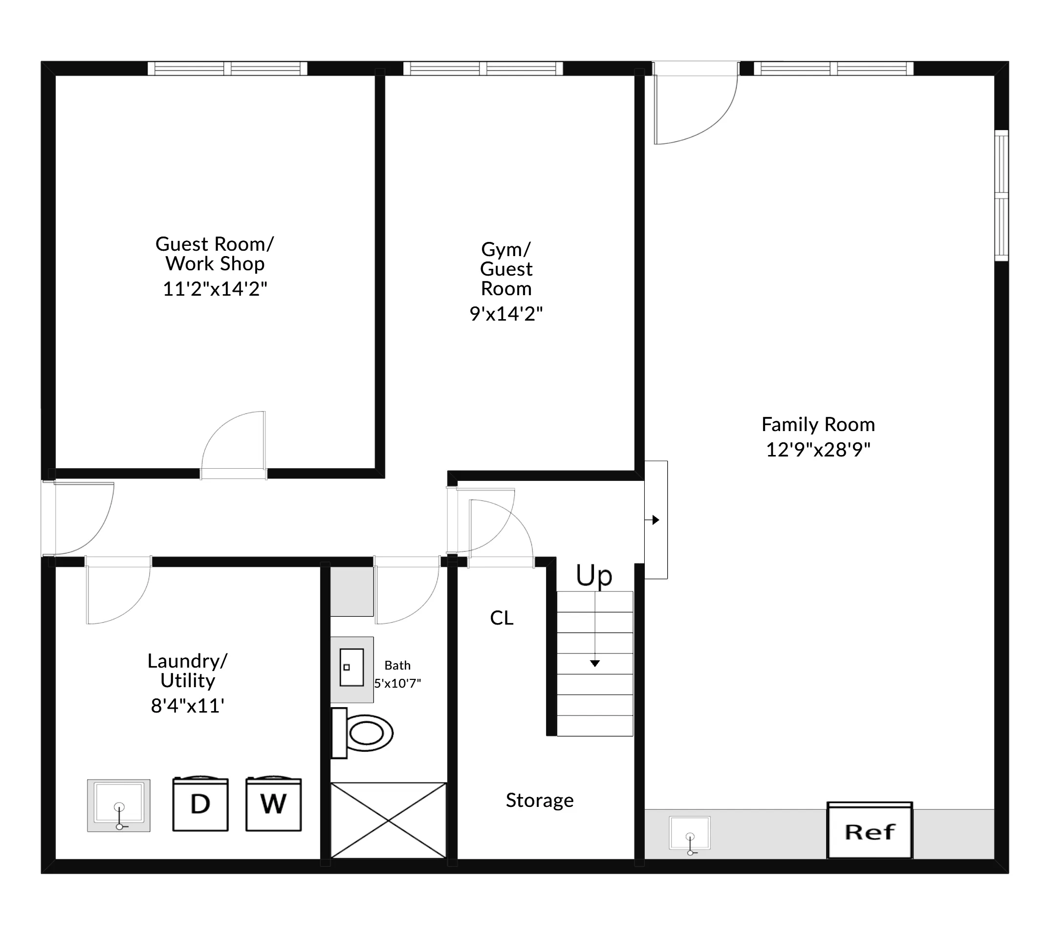
Bright, Spacious & Renovated 6-Bd. House with Deck & Level, Grassy Yard on Quiet, Leafy Cul-de-Sac
Located along a quiet, leafy cul-de-sac, this sunny and spacious 6-bedroom, 4-bath house, built in 1973, was completely renovated and expanded in 2017. It enjoys a front garden, an inviting rear dining deck, a hot tub, a level, grassy backyard and a private multicar driveway.
Policies
Sorry, policy info isn’t available right now. Check back later.
Home features
Central air
Dishwasher
Fireplace
Decorative
Hardwood floors
Private outdoor space
Garden
View
Garden
Washer/dryer
Building amenities
Services and facilities
Laundry in building
Wellness and recreation
Gym
Shared outdoor space
No info on shared outdoor space
About the building
5648 Delafield Avenue
5648 Delafield Avenue, Bronx, NY 10471
1 unit
2 stories
1973 built
For sale
0 available units for saleFor rent
0 available units for rentDocuments and permits
View documents and permitsProperty history
- Price Change: No changes
- Days on market: 14 daysThis is the number of days the listing has been on StreetEasy.
| Date | Price | Event |
|---|---|---|
1/7/2026 | $1,650,000 | Sold by Trebach Realty |
10/17/2025 | $1,650,000 | In contract |
10/3/2025 | $1,650,000 | Listed by Trebach Realty |
7/26/2016 | $599,000 | |
7/29/2016 | $625,000 |
Past listing photos
Sign in to take a closer look at how this home compares to similar homes.
Explore Riverdale
Transit
| Location | Distance |
|---|---|
1at Van Cortlandt Park–242nd St | 1.08 miles |
1at 238th St | 1.42 miles |
1at 231st St | 1.81 miles |
About Riverdale
Rental prices shown are base rent before any fees. Visit listings for cost and fees breakdown.
SalesMedian asking price
6 beds
$3.47M
Riverdale was once a summer retreat for wealthy New Yorkers, who built large estates and Tudor-style mansions along the cliffs overlooking the Hudson River and the Palisades. Many of these properties still remain, which lends an upscale, polished atmosphere to the neighborhood's windy, tree-lined streets. Although certain pockets recall the tonier Westchester towns to the north, Riverdale is far more diverse. In addition to large single-family homes, Riverdale also features many co-op complexes, which offer more affordable housing options but the same easy, bucolic pace of life.
Learn more about Riverdale




























































































































































































































































































































