$1,625,000
For Sale
No longer available 12/5/2017
- ft²
10 rooms
4 beds
2 baths
Two-family home
- Stuyvesant Heights
Seller's agents
This home has been saved by 41 users.
Listing by Halstead Real Estate, 1107 Bedford Avenue, Brooklyn, NY 11216 | MLS #: 17661617
Common charges
Not applicable
Estimated payment
$8,432/mo
Legal disclaimerAll calculations are estimates provided by StreetEasy for informational purposes only. Actual amounts or financing terms may vary. Please contact your mortgage provider for specifics.Taxes
No info
Tax abatement
No info
About
Seller’s agent
description
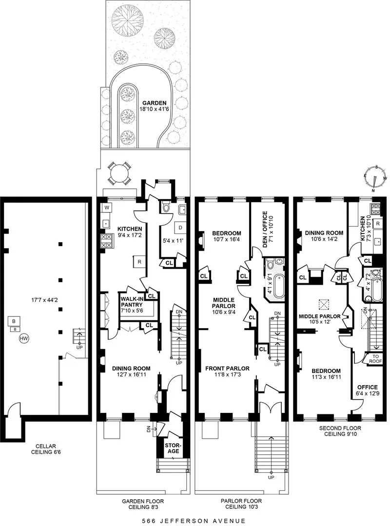
Brownstone Beauty
Ideally located on Jefferson Avenue in prime Stuyvesant Heights, this 3 story 2 family Brownstone is built 19' x 50' on a 100' lot. As you enter the main entrance, you will be greeted with gorgeous period details that leads to a spacious triple parlor. This Brownstone retains most of its original charms such as parquetry wood floors throughout, 4 decorative mantles with wood casing,...
Policies
Sorry, policy info isn’t available right now. Check back later.
Home features
No info on home features
Building amenities
Services and facilities
No info on services and facilities
Wellness and recreation
No info on wellness and recreation
Shared outdoor space
Roof deck
About the building
566 Jefferson Avenue
566 Jefferson Avenue, Brooklyn, NY 11221
2 units
2 stories
1899 built
For sale
0 available units for saleFor rent
0 available units for rentDocuments and permits
View documents and permitsProperty history
- Price Change: No changes
- Days on market: 42 daysThis is the number of days the listing has been on StreetEasy.
| Date | Price | Event |
|---|---|---|
12/5/2017 | $1,625,000 | No longer available |
10/24/2017 | $1,625,000 | Listed by Halstead Real Estate |
Sign in to take a closer look at how this home compares to similar homes.
Explore Stuyvesant Heights
Transit
| Location | Distance |
|---|---|
ACat Utica Av | 0.4 miles |
ACat Kingston–Throop | 0.4 miles |
Jat Kosciusko St | 0.69 miles |
JZat Gates Av | 0.75 miles |
ACat Nostrand Av | 0.78 miles |






























































































































