2,037 ft²
$1,196 per ft²
6 rooms
2 beds
2.5 baths
Condo
- Park Slope
Resale
recorded sale
Sold on 12/3/2024
Verified by closing records
Last listed for $2,475,000
Seller's agents
This home has been saved by 17 users.
Listing by Douglas Elliman, Limited Liability Broker, 187 Seventh Avenue, Brooklyn, NY 11215 | Brokerage Listing ID: 23054748
Common charges
$475/mo
Estimated payment
$13,490/mo
Legal disclaimerAll calculations are estimates provided by StreetEasy for informational purposes only. Actual amounts or financing terms may vary. Please contact your mortgage provider for specifics.Taxes
$500/mo
Tax abatement
No info
About
Seller’s agent
Buyer’s agent
description
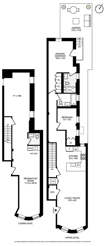
Residence 1R at 590 6th Street is a beautiful, timeless two-bedroom, two-and-a-half-bathroom duplex with a serene private garden. Entering this spacious home, you’re welcomed by an oversized great room which offers plenty of space for living and dining. This level also offers ten-foot ceilings and quintessential bay window overlooking tree lined sixth street, just off Prospect Park.
Policies
Sorry, policy info isn’t available right now. Check back later.
Home features
Central air
Dishwasher
Hardwood floors
Private outdoor space
Garden
View
City, Garden
Washer/dryer
Building amenities
No info on building amenities
About the building
590 6th Street
590 6th Street, Brooklyn, NY 11215
8 units
4 stories
1931 built
For sale
0 available units for saleFor rent
0 available units for rentDocuments and permits
View documents and permitsProperty history
- Price Change: ↓ $120,000 (-4.6%) on 7/10/24
- Days on market: 41 daysThis is the number of days the listing has been on StreetEasy.
| Date | Price | Event |
|---|---|---|
12/3/2024 | $2,437,500 | Sold by Douglas Elliman |
10/21/2024 | $2,475,000 | No longer available |
7/22/2024 | $2,475,000 | Temporarily off market |
7/10/2024 | $2,475,000 | Price decreased by 5% |
6/11/2024 | $2,595,000 | Listed by Douglas Elliman |
Past listing photos
Sign in to take a closer look at how this home compares to similar homes.
Explore Park Slope
Transit
| Location | Distance |
|---|---|
Fat 7th Av | 0.13 miles |
Fat Prospect Park–15 St | 0.41 miles |
23at Grand Army Plaza | 0.63 miles |
FGRat 9th St | 0.65 miles |
Fat 4th Av | 0.68 miles |
About Park Slope
Rental prices shown are base rent before any fees. Visit listings for cost and fees breakdown.
SalesMedian asking price
2 beds
$1.52M
RentalsMedian asking base rent
2 beds
$4,700
Park Slope has a tranquil, easygoing vibe and can almost feel suburban. Strollers and children of all ages are a constant presence on sidewalks, as are shoppers patronizing local boutiques and dog walkers heading up to the park. Residents are Brooklynites through and through and tend to be socially conscious, artistically minded, and committed to their community. At night, a casual restaurant scene comes alive. For anyone looking for a night out, there are plenty of beer gardens and wine bars to patronize, especially in the South Slope, but don't go looking for dance clubs.
Learn more about Park Slope









































































































































