$1,495,000
for sale
In contract 5/3/2026
1,150 ft²
$1,300 per ft²
4 rooms
2 beds
2 baths
Condo
- Park Slope
Resale
This home has been saved by 109 users.
Listing by Compass, Corporate Broker, 110 5th Avenue, New York, NY 10011
Common charges
$365/mo
Estimated payment
$8,959/mo
Taxes
$6/mo
Tax abatement
421a expires in 2031
About
Seller’s agent
Description
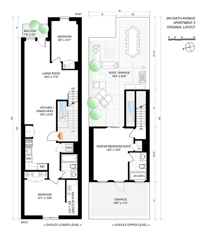
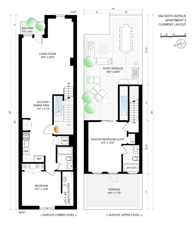
The sun shines into this stunning 2-bedroom, 2-bath duplex condo (that easily converts to 3 bedrooms). Spanning two floors of thoughtfully designed living space, this home offers an unparalleled urban retreat with three private outdoor areas. Enjoy morning coffee on the east-facing balcony; work or workout in the bright sunroom; and entertain on the 450sf primary roof deck.
Policies
Pets allowed
Home features
Central air
Dishwasher
Hardwood floors
Private outdoor space
Balcony, Roof deck, Terrace
Washer/dryer
Building amenities
No info on building amenities
About the building
594 6th Avenue
594 6th Avenue, Brooklyn, NY 11215
3 units
4 stories
2004 built
For sale
1 available units for saleFor rent
0 available units for rentDocuments and permits
View documents and permitsProperty history
- Price Change: No changes
- Days on market: 10 days
| Date | Price | Event |
|---|---|---|
5/3/2026 | $1,495,000 | In contract |
4/23/2026 | $1,495,000 | Listed by Compass |
7/28/2016 | $1,200,000 | |
8/15/2016 | $995,000 | |
7/6/2016 | $995,000 |
Past listing photos
Sign in to take a closer look at how this home compares to similar homes.
Explore Park Slope
Transit
| Location | Distance |
|---|---|
Rat Prospect Av | 0.27 miles |
Fat 7th Av | 0.43 miles |
Fat Prospect Park–15 St | 0.47 miles |
Fat 4th Av | 0.48 miles |
FGRat 9th St | 0.5 miles |
About Park Slope
Rental prices shown are base rent before any fees. Visit listings for cost and fees breakdown.
SalesMedian asking price
2 beds
$1.4M
RentalsMedian asking base rent
2 beds
$4,975
Park Slope has a tranquil, easygoing vibe and can almost feel suburban. Strollers and children of all ages are a constant presence on sidewalks, as are shoppers patronizing local boutiques and dog walkers heading up to the park. Residents are Brooklynites through and through and tend to be socially conscious, artistically minded, and committed to their community. At night, a casual restaurant scene comes alive. For anyone looking for a night out, there are plenty of beer gardens and wine bars to patronize, especially in the South Slope, but don't go looking for dance clubs.
Learn more about Park Slope


































































































