$10,800
For Rent
Base rent only. For total monthly price and additional fees, see .
Rented 8/2/2022
3,000 ft²
$43 per ft²
8 rooms
4 beds
2.5 baths
Two-family home
- Park Slope
Under NYC law, you can't be charged a broker fee if you didn't hire a broker.
Listed By
This home has been saved by 19 users.
Listing by DavidWest Properties, Corporate Broker, 242 Prosepct Park West, Brooklyn, NY 11215
Unavailable
Rented on 8/2/2022
Days on market
5 days
Last price change
No changes
About
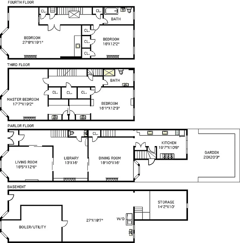
Presenting a rare opportunity to rent a stunning bay front limestone townhouse triplex in the center of Park Slope, just a few steps from Prospect Park. Lovingly restored period detail combines with modern amenities to make this three story private home a most gracious living experience.
The parlor floor of the house is a classic triple parlor with a luscious front room, a center sitting room with built in curio cabinets, and a formal dining room featuring oak wainscoting and a coffered ceiling.
Policies
Sorry, policy info isn’t available right now. Check back later.
Home features
Central air
Dishwasher
Hardwood floors
Private outdoor space
Garden
Washer/dryer
Building amenities
Services and facilities
Laundry in building
Wellness and recreation
No info on wellness and recreation
Shared outdoor space
Courtyard
About the building
606 6th Street
606 6th Street, Brooklyn, NY 11215
2 units
3 stories
1901 built
Property history
Prices shown are base rent only. For total monthly price and additional fees, see .
| Date | Base rent | Event |
|---|---|---|
8/2/2022 | $10,800 | Rented by DavidWest Properties |
7/29/2022 | $10,800 | In contract |
7/24/2022 | $10,800 | Listed by DavidWest Properties |
5/25/2018 | $9,000 | |
5/4/2018 | $9,000 |
Past listing photos
Sign in to take a closer look at how this home compares to similar homes.
Explore Park Slope
Transit
| Location | Distance |
|---|---|
Fat 7th Av | 0.15 miles |
Fat Prospect Park–15 St | 0.4 miles |
23at Grand Army Plaza | 0.64 miles |
FGRat 9th St | 0.68 miles |
Fat 4th Av | 0.71 miles |
About Park Slope
Rental prices shown are base rent before any fees. Visit listings for cost and fees breakdown.
SalesMedian asking price
4 beds
$3.43M
RentalsMedian asking base rent
4 beds
$7,400
Park Slope has a tranquil, easygoing vibe and can almost feel suburban. Strollers and children of all ages are a constant presence on sidewalks, as are shoppers patronizing local boutiques and dog walkers heading up to the park. Residents are Brooklynites through and through and tend to be socially conscious, artistically minded, and committed to their community. At night, a casual restaurant scene comes alive. For anyone looking for a night out, there are plenty of beer gardens and wine bars to patronize, especially in the South Slope, but don't go looking for dance clubs.
Learn more about Park SlopeSimilar homes
Prices shown are base rent only and don't include any fees. Visit each listing to see a complete cost breakdown.
Similar Homes looks at ad spend and other factors like location, price, and number of beds and baths.



































































































































