- ft²
2 rooms
Studio
0 baths
Two-family home
- Park Slope
reported sale
Sold on 9/28/2012
Not yet verified by closing records
Seller's agents
Rosetta Farrell
Licensed Real Estate Salesperson
Halstead Real Estate
This home has been saved by 6 users.
Listing by Halstead Real Estate, 125 Seventh Avenue, Brooklyn, NY 11215 | MLS #: 2316853
Common charges
Not applicable
Estimated payment
$13,816/mo
Taxes
No info
Tax abatement
No info
About
Seller’s agent
Description
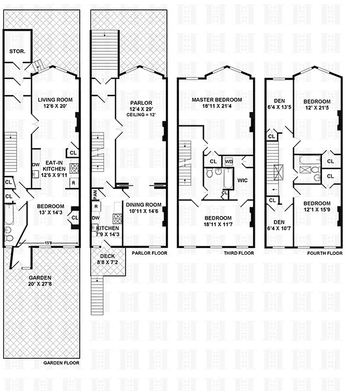
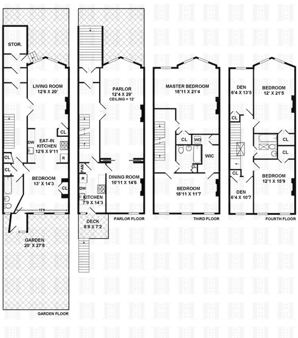
Details abound in this 4 story North Slope gem. This lovingly maintained 4 story brownstone offers all the space you would want. This home offers an upper triplex with a garden floor rental. Upon entering the foyer the first thing you will be struck by is the intricate detail of the beautiful original woodwork, continuing you enter the double parlor doors where there is a formal living room and formal dining room both with 11+ ceilings, marble mantles and gorgeous working pocket doors.
Policies
Sorry, policy info isn’t available right now. Check back later.
Home features
Private outdoor space
Garden
Building amenities
Services and facilities
No info on services and facilities
Wellness and recreation
No info on wellness and recreation
Shared outdoor space
Deck
About the building
63 7th Avenue
63 7th Avenue, Brooklyn, NY 11217
2 units
3 stories
1899 built
For sale
0 available units for saleFor rent
0 available units for rentDocuments and permits
View documents and permitsProperty history
- Price Change: No changes
- Days on market: 80 days
| Date | Price | Event |
|---|---|---|
12/21/2012 | $2,400,000 | |
10/30/2016 | $2,750,000 | Sold by Halstead Real Estate |
9/28/2012 | $2,750,000 | No longer available |
7/10/2012 | $2,750,000 | Listed by Halstead Real Estate |
Sign in to take a closer look at how this home compares to similar homes.
Explore Park Slope
Transit
| Location | Distance |
|---|---|
BQat 7th Av | 0.16 miles |
23at Grand Army Plaza | 0.17 miles |
23at Bergen St | 0.37 miles |
Rat Union St | 0.46 miles |
LIRRat Atlantic Terminal | 0.57 miles |
About Park Slope
Rental prices shown are base rent before any fees. Visit listings for cost and fees breakdown.
SalesMedian asking price
Studio
$540K
RentalsMedian asking base rent
Studio
$3,199
Park Slope has a tranquil, easygoing vibe and can almost feel suburban. Strollers and children of all ages are a constant presence on sidewalks, as are shoppers patronizing local boutiques and dog walkers heading up to the park. Residents are Brooklynites through and through and tend to be socially conscious, artistically minded, and committed to their community. At night, a casual restaurant scene comes alive. For anyone looking for a night out, there are plenty of beer gardens and wine bars to patronize, especially in the South Slope, but don't go looking for dance clubs.
Learn more about Park Slope





























































































