$4,000
For Rent
Base rent only. For total monthly price and additional fees, see .
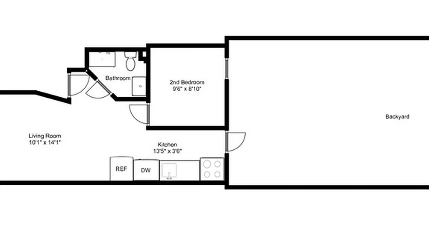
715 ft²
$67 per ft²
3 rooms
2 beds
1 bath
Four-family home
- Park Slope
Under NYC law, you can't be charged a broker fee if you didn't hire a broker.
Listed By
This home has been saved by 103 users.
Open House
Fri, Jan 16 (4–5 PM ET), by appt only
Listing by Compass, Corporate Broker, 110 5th Avenue, New York, NY 10011
Available
Available now
Days on market
44 days
Last price change
No changes
About
Now available in one of the most coveted neighborhoods in Brooklyn, 630 President St is a 4-unit non-elevator building on the market for anyone looking to rent a piece of Park Slope!
This unit in the building has been updated to provide the feeling of cozy condo living in Park Slope. In the kitchen are new stainless steel appliances, updated cabinetry, and countertops that have all been recently renovated.
Policies
Sorry, policy info isn’t available right now. Check back later.
Home features
Dishwasher
Private outdoor space
Garden
Building amenities
Services and facilities
Laundry in building
Storage space
Locker/cage
Wellness and recreation
No info on wellness and recreation
Shared outdoor space
No info on shared outdoor space
About the building
630 President Street
630 President Street, Brooklyn, NY 11215
4 units
4 stories
1920 built
Property history
Prices shown are base rent only. For total monthly price and additional fees, see .
| Date | Base rent | Event |
|---|---|---|
12/1/2025 | $4,000 | Listed by Compass |
Sign in to take a closer look at how this home compares to similar homes.
Explore Park Slope
Transit
| Location | Distance |
|---|---|
Rat Union St | under 500 feet |
23at Bergen St | 0.48 miles |
BQat 7th Av | 0.49 miles |
FGRat 9th St | 0.52 miles |
Fat 4th Av | 0.56 miles |
About Park Slope
Rental prices shown are base rent before any fees. Visit listings for cost and fees breakdown.
SalesMedian asking price
2 beds
$1.54M
RentalsMedian asking base rent
2 beds
$4,600
Park Slope has a tranquil, easygoing vibe and can almost feel suburban. Strollers and children of all ages are a constant presence on sidewalks, as are shoppers patronizing local boutiques and dog walkers heading up to the park. Residents are Brooklynites through and through and tend to be socially conscious, artistically minded, and committed to their community. At night, a casual restaurant scene comes alive. For anyone looking for a night out, there are plenty of beer gardens and wine bars to patronize, especially in the South Slope, but don't go looking for dance clubs.
Learn more about Park SlopeSimilar homes
Prices shown are base rent only and don't include any fees. Visit each listing to see a complete cost breakdown.
Similar Homes looks at ad spend and other factors like location, price, and number of beds and baths.
















































































































