$1,779,999
For Sale
Delisted 11/17/2025
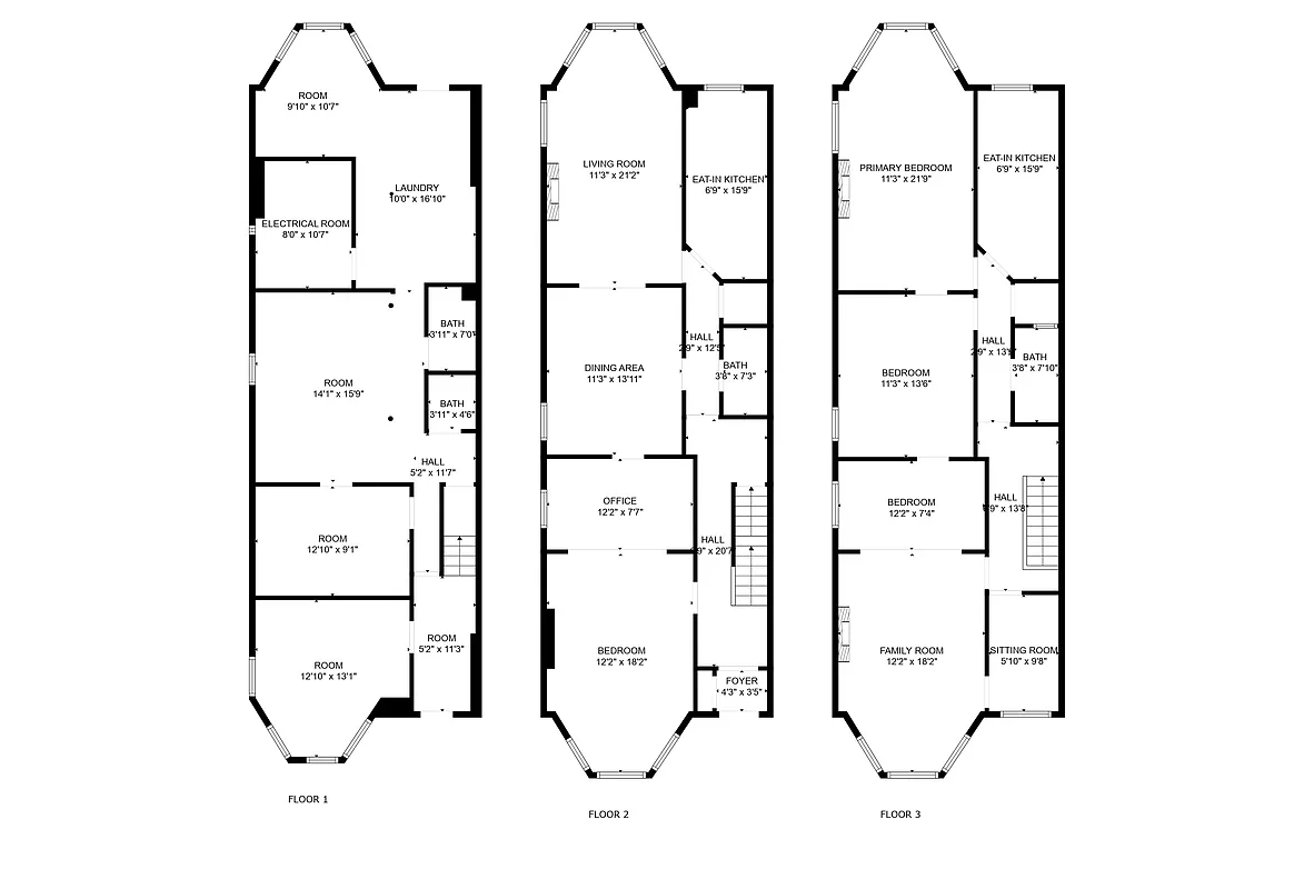
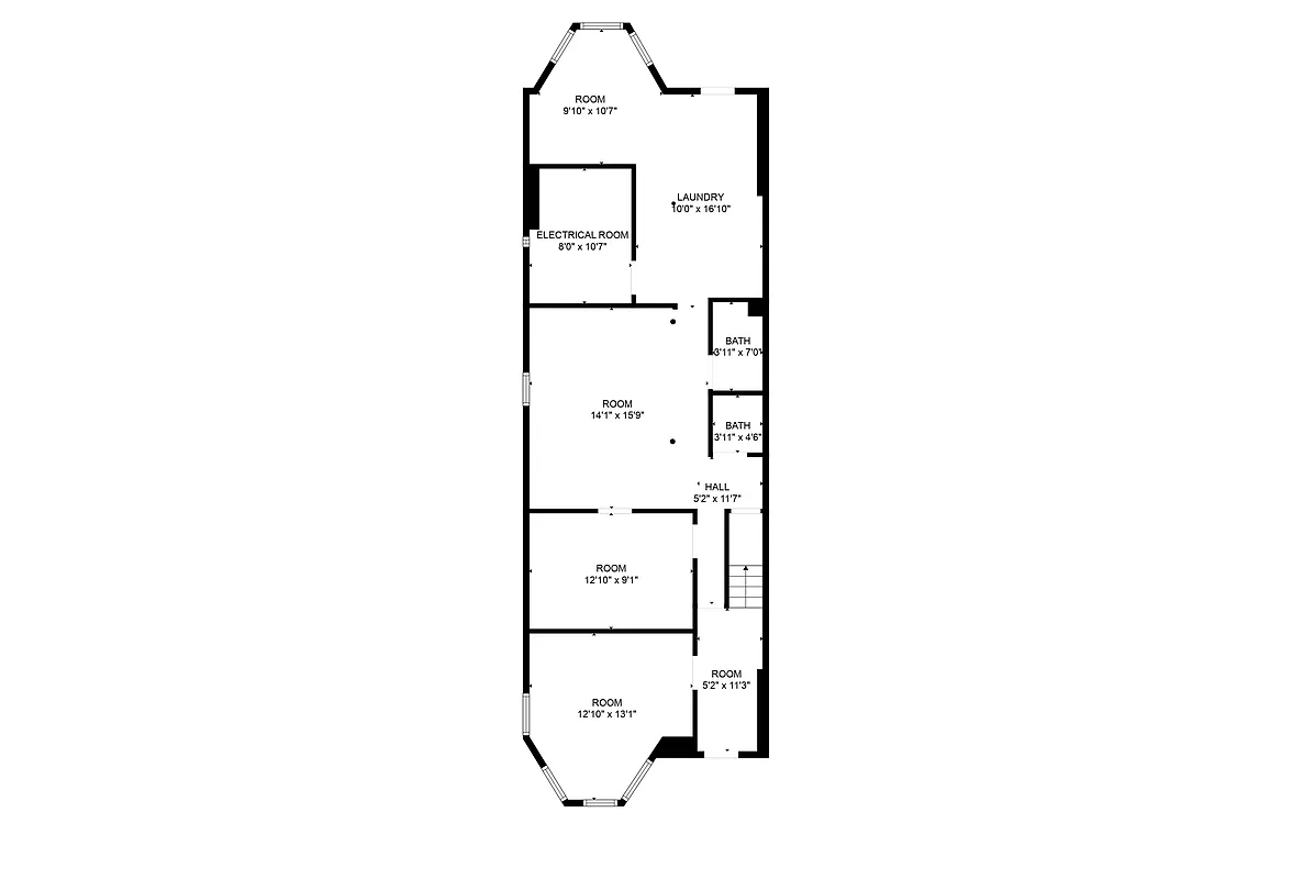
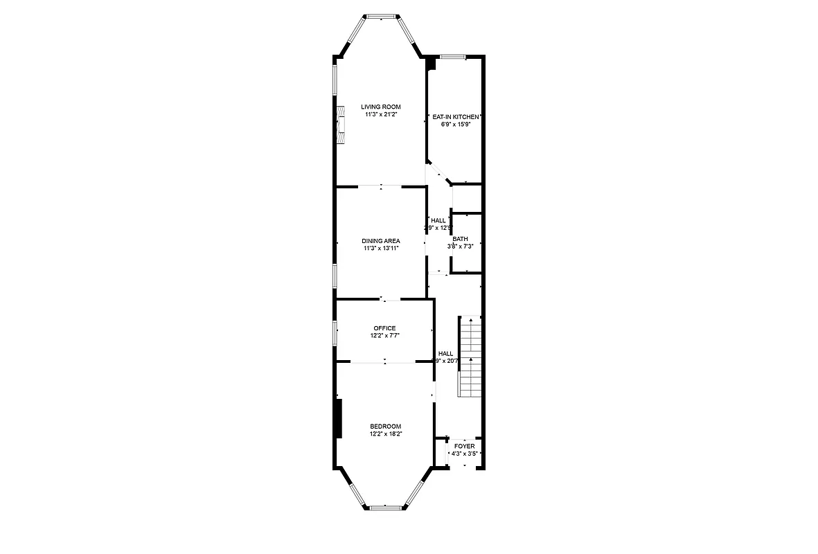
3,600 ft²
$494 per ft²
15 rooms
5 beds
3 baths
Two-family home
- Bushwick
Resale
Seller's agent
This home has been saved by 20 users.
Listing by Peoples Realty & Associates, Real Estate Principal Office, 70 E Sunrise Hwy, Valley Stream, NY 11581
Common charges
Not applicable
Estimated payment
$9,474/mo
Legal disclaimerAll calculations are estimates provided by StreetEasy for informational purposes only. Actual amounts or financing terms may vary. Please contact your mortgage provider for specifics.Taxes
$415/mo
Tax abatement
No info
About
Seller’s agent
description
BUYER’S INCENTIVE ON THIS BUSHWICK BROWNSTONE! Welcome to 65 Granite Street, a beautifully preserved and thoughtfully updated 20-foot-wide, semi-detached Brownstone on an oversized 30-foot lot. A true rarity, this home features a two-car garage and expansive outdoor space, perfect for entertaining, gardening, or simply enjoying peaceful city moments.
Policies
Sorry, policy info isn’t available right now. Check back later.
Home features
Fireplace
Hardwood floors
Private outdoor space
Garden
Washer/dryer
Building amenities
Services and facilities
Laundry in building
Wellness and recreation
No info on wellness and recreation
Shared outdoor space
No info on shared outdoor space
About the building
65 Granite Street
65 Granite Street, Brooklyn, NY 11207
2 units
2 stories
1910 built
For sale
0 available units for saleFor rent
0 available units for rentDocuments and permits
View documents and permitsProperty history
- Price Change: ↓ $215,001 (-10.8%) on 8/18/25
- Days on market: 226 daysThis is the number of days the listing has been on StreetEasy.
| Date | Price | Event |
|---|---|---|
11/19/2025 | $1,779,999 | Delisted by Peoples Realty & Associates |
11/17/2025 | $1,779,999 | No longer available |
8/18/2025 | $1,779,999 | Price decreased by 11% |
8/18/2025 | $1,995,000 | Listed by Peoples Realty & Associates |
7/1/2025 | $1,995,000 | Delisted by Peoples Realty & Associates |
Sign in to take a closer look at how this home compares to similar homes.
Explore Bushwick
Transit
| Location | Distance |
|---|---|
Lat Bushwick Av | 0.14 miles |
JZat Chauncey St | 0.22 miles |
Lat Wilson Av | 0.37 miles |
ACJLat Broadway Junction–East New York | 0.41 miles |
ACat Rockaway Av | 0.41 miles |
About Bushwick
Rental prices shown are base rent before any fees. Visit listings for cost and fees breakdown.
SalesMedian asking price
5 beds
$1.7M
RentalsMedian asking base rent
5 beds
$5,800
Bushwick has seen a lot of change over the years. In the early 1900s, it was known for its thriving distilleries and breweries. After those industries declined, it experienced a long period of blight through the 1970s and 1980s. Now the neighborhood is seeing a renaissance, as artists pushed out of Williamsburg and elsewhere move in and raise property values. Bushwick offers unconventional living spaces: The housing market is full of converted lofts in old factories, sometimes with great access to outdoor space.
Learn more about Bushwick















































































































































































































