$3,795
For Rent
Base rent only. For total monthly price and additional fees, see .
No longer available 3/13/2024
- ft²
3 rooms
1 bed
1 bath
Rental unit
- Murray Hill
Under NYC law, you can't be charged a broker fee if you didn't hire a broker.
Listed By
Harlington
This home has been saved by 107 users.
Listing by Harlington | Brokerage Listing ID: 164025
Unavailable
No longer available on 3/13/2024
Days on market
14 days
Last price change
No changes
About
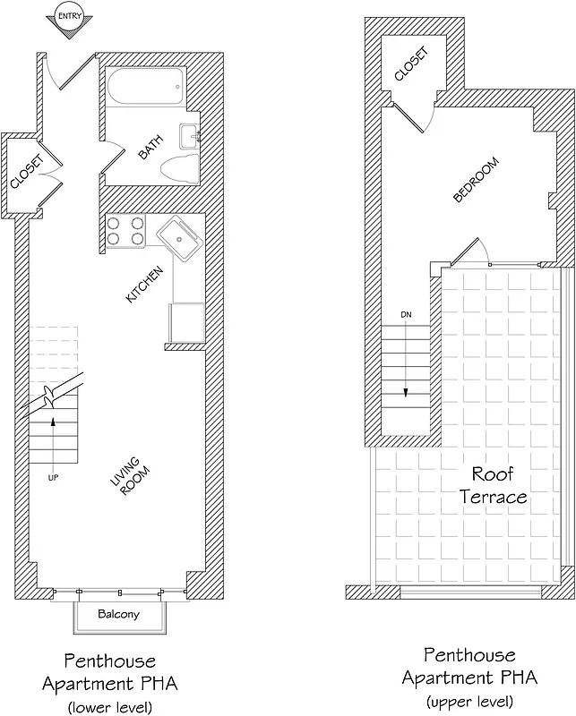
No fee! Enjoy this unique 1 bedroom duplex penthouse with an impressive private terrace in Murray Hill!
Features open-concept gourmet kitchen with custom white cabinetry plus stainless steel appliances, including dishwasher.
Living room with Juliet balcony. Great views!
Queen size bedroom with entrance to second private terrace.
High ceilings and hardwood floors throughout. Heat and hot water included.
Policies
Pets allowed
Home features
No info on home features
Building amenities
Services and facilities
Elevator
Laundry in building
Wellness and recreation
No info on wellness and recreation
Shared outdoor space
No info on shared outdoor space
About the building
655 2nd Avenue
655 2nd Avenue, New York, NY 10016
22 units
8 stories
1982 built
Property history
Prices shown are base rent only. For total monthly price and additional fees, see .
| Date | Base rent | Event |
|---|---|---|
3/13/2024 | $3,795 | No longer available |
2/28/2024 | $3,795 | Listed by Harlington |
2/7/2023 | $3,958 | |
2/1/2023 | $3,958 | |
2/3/2022 | $3,954 |
Sign in to take a closer look at how this home compares to similar homes.
Explore Murray Hill
Transit
| Location | Distance |
|---|---|
Ferryat E 34th Street Ferry Landing | 0.25 miles |
6at 33rd St | 0.32 miles |
S4567at Grand Centralâ42nd St | 0.34 miles |
6at 28th St | 0.48 miles |
BDFM7at 5th Av | 0.59 miles |
About Murray Hill
Rental prices shown are base rent before any fees. Visit listings for cost and fees breakdown.
SalesMedian asking price
1 bed
$749K
RentalsMedian asking base rent
1 bed
$4,983
Murray Hill has a lively energy most hours of the day and night. In the morning, the streets are filled with professionals looking polished in their Brooks Brothers suits as they head to work. Come evening, you'll see the crowds returning home decked out in gym clothes and schlepping bags of take-out dinner and Trader Joe's. The neighborhood has a down-to-earth, casual vibe, and there's always a big game airing at one of the many sports bars along the Third Avenue strip. Many of Murray Hill's residents are renters who come and go, but the place eschews intransigence and maintains a familiar, college-town feel.
Learn more about Murray HillSimilar homes
Prices shown are base rent only and don't include any fees. Visit each listing to see a complete cost breakdown.
Similar Homes looks at ad spend and other factors like location, price, and number of beds and baths.























































































































