$2,700
For Rent
Base rent only. For total monthly price and additional fees, see .
Rented 2/1/2017
850 ft²
$38 per ft²
4 rooms
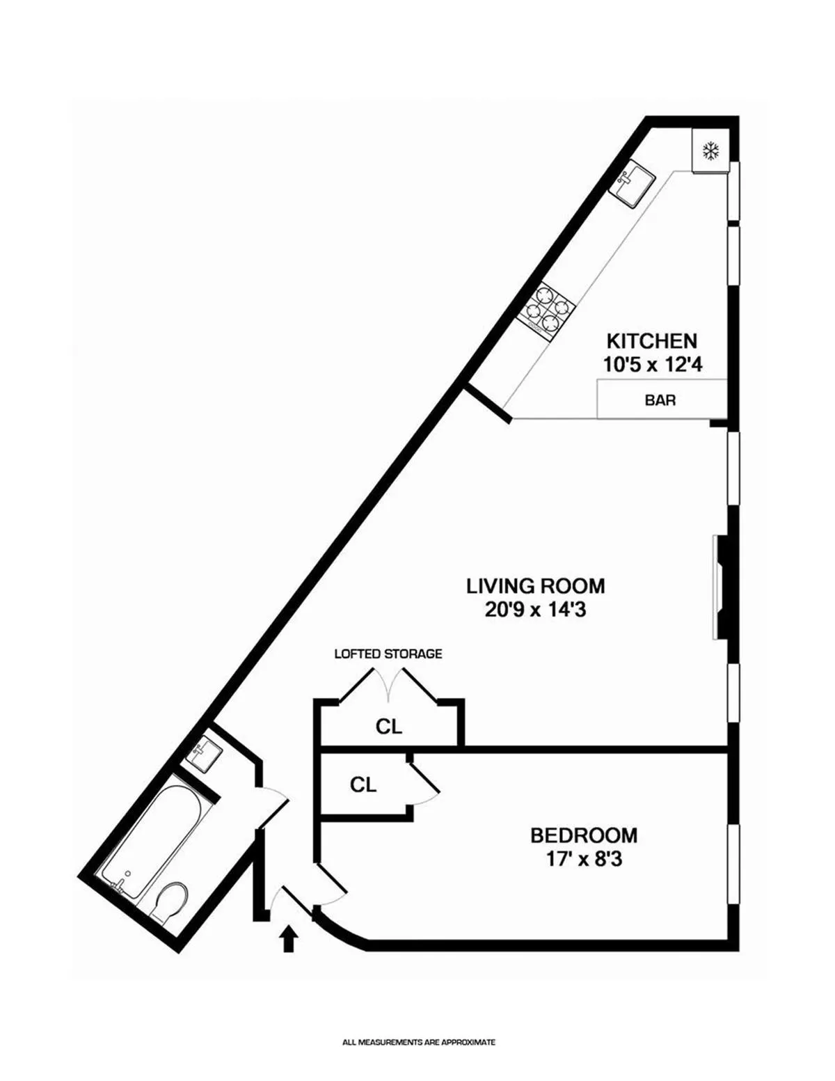
1 bed
1 bath
Mixed-use building
- Fort Greene
Under NYC law, you can't be charged a broker fee if you didn't hire a broker.
Listed By
This home has been saved by 30 users.
Listing by Douglas Elliman, Limited Liability Broker, 237 Smith Street, Brooklyn, NY 11231 | Brokerage Listing ID: 2582372
Unavailable
Rented on 2/1/2017
Days on market
57 days
Last price change
↓ $200 (-6.9%) on 1/23/17
About
Prime Fort Greene. Near all major subways, restaurants, BAM and Fort Greene Park.Lofty perfection turn of the century, cast iron loft building on South Elliott Pl.Spacious, sunny original pine floors, high ceilings, recently renovated kitchen with heat and hot water included in the rent. Laundromat and pick up service is just one block away. Available now. Pets are upon approval.
Policies
Sorry, policy info isn’t available right now. Check back later.
Home features
Loft
Building amenities
No info on building amenities
About the building
666 Fulton Street
666 Fulton Street, Brooklyn, NY 11217
5 units
4 stories
1930 built
Property history
Prices shown are base rent only. For total monthly price and additional fees, see .
| Date | Base rent | Event |
|---|---|---|
7/12/2017 | $2,700 | Rented by Douglas Elliman |
2/1/2017 | $2,700 | No longer available |
1/23/2017 | $2,700 | Price decreased by 7% |
12/12/2016 | $2,900 | Price decreased by 3% |
12/6/2016 | $3,000 | Listed by Douglas Elliman |
Past listing photos
Sign in to take a closer look at how this home compares to similar homes.
Explore Fort Greene
Transit
| Location | Distance |
|---|---|
Cat Lafayette Av | under 500 feet |
Gat Fulton St | under 500 feet |
BDNQR2345at Atlantic Av–Barclays Ctr | 0.15 miles |
LIRRat Atlantic Terminal | 0.2 miles |
2345at Nevins St | 0.28 miles |
About Fort Greene
Rental prices shown are base rent before any fees. Visit listings for cost and fees breakdown.
SalesMedian asking price
1 bed
$899K
RentalsMedian asking base rent
1 bed
$4,355
With bustling flea markets, a world-renowned performance space, trendy boutiques, fabulous restaurants, and a rich literary and artistic tradition, Fort Greene attracts residents looking for a slower pace of living without sacrificing the vibrancy of urban life. Historic brownstones and row houses make up most of the available real estate, and it's common to find neighbors catching up on their stoops. Intense Brooklyn pride is in evidence on the main drag of Fulton Street, where a Notorious B.I.G. quote is painted on the side of a prominent building - "Spread love it's the Brooklyn way."
Learn more about Fort GreeneSimilar homes
Prices shown are base rent only and don't include any fees. Visit each listing to see a complete cost breakdown.
Similar Homes looks at ad spend and other factors like location, price, and number of beds and baths.

































































