- ft²
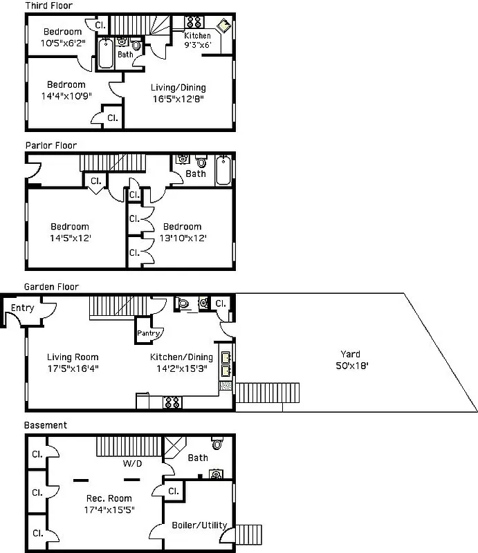
7 rooms
4 beds
3.5 baths
Two-family home
- Gowanus
recorded sale
Sold on 11/30/2015
Verified by closing records
Last listed for $1,499,000
Seller's agents
Mary Klein
Corcoran
Emily Shepodd
Corcoran
This home has been saved by 80 users.
Listing by Corcoran, Limited Liability Broker, 1 Pierrepont Plz, Brooklyn, NY 11201 | Brokerage Listing ID: 3475708
Common charges
Not applicable
Estimated payment
$7,700/mo
Legal disclaimerAll calculations are estimates provided by StreetEasy for informational purposes only. Actual amounts or financing terms may vary. Please contact your mortgage provider for specifics.Taxes
$190/mo
Tax abatement
No info
About
Seller’s agent
description
Back on the market with a COMPLETELY RENOVATED PARLOR FLOOR, this charming South Slope/ Gowanus two-unit townhouse is currently configured as a owners duplex with a semi-finished basement and an income-producing top floor two-bedroom, one-bath apartment. The garden level serves as the entrance for the lower apartment and has a wonderful open layout. The entire floor has been renovated with the roomy kitchen as the centerpiece.
Policies
Sorry, policy info isn’t available right now. Check back later.
Home features
Private outdoor space
Patio
Building amenities
No info on building amenities
About the building
67 16th Street
67 16th Street, Brooklyn, NY 11215
2 units
2 stories
1899 built
For sale
0 available units for saleFor rent
0 available units for rentDocuments and permits
View documents and permitsProperty history
- Price Change: ↑ $4,000 (+0.3%) on 9/17/15
- Days on market: 2792 daysThis is the number of days the listing has been on StreetEasy.
| Date | Price | Event |
|---|---|---|
11/30/2015 | $1,425,000 | Sold by Corcoran |
11/30/2015 | $1,425,000 | No longer available |
11/30/2015 | $1,425,000 | Sold by Corcoran |
10/17/2015 | $1,499,000 | No longer available |
10/17/2015 | $1,499,000 | In contract |
Past listing photos
Sign in to take a closer look at how this home compares to similar homes.
Explore Gowanus
Transit
| Location | Distance |
|---|---|
Rat Prospect Av | 0.14 miles |
Fat 4th Av | 0.3 miles |
FGRat 9th St | 0.36 miles |
Rat 25th St | 0.51 miles |
FGRat Smith–9th St | 0.55 miles |






















































































