- ft²
3 rooms
1 bed
1 bath
Co-op
- Park Slope
Resale
recorded sale
Sold on 7/8/2024
Verified by closing records
Last listed for $675,000
Seller's agents
This home has been saved by 80 users.
Listing by Compass, Corporate Broker, 212 Court Street, Brooklyn, NY 11201 | Brokerage Listing ID: 1525616105709708809
Maintenance fees
$720/mo
Estimated payment
$4,916/mo
Taxes
Included in maintenance fees
Tax abatement
No info
About
Sellerâs agent
description
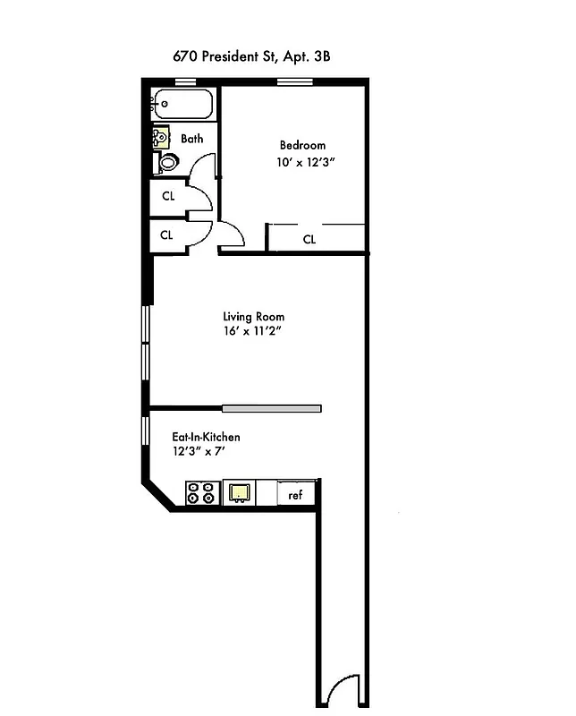
Welcome to this charming 1-bedroom, 1-bath co-op located at 670 President St in the heart of Park Slope, Brooklyn, NY. This delightful home offers a cozy retreat in a vibrant neighborhood.
The living room features an abundance of natural light streaming in from the eastern exposure and a verdant 3rd floor tree-top view of the neighboring back yards creating a warm and inviting atmosphere.
Policies
Pets allowed
Cats and dogs allowed
Home features
Dishwasher
Hardwood floors
Private outdoor space
Garden
View
Garden
Building amenities
Services and facilities
Bike room
Laundry in building
Wellness and recreation
No info on wellness and recreation
Shared outdoor space
Courtyard
About the building
670 President Street
670 President Street, Brooklyn, NY 11215
20 units
5 stories
1920 built
For sale
1 available units for saleFor rent
0 available units for rentDocuments and permits
View documents and permitsProperty history
- Price Change: No changes
- Days on market: 26 days
| Date | Price | Event |
|---|---|---|
7/8/2024 | $675,000 | Sold by Compass |
3/31/2024 | $675,000 | In contract |
3/5/2024 | $675,000 | Listed by Compass |
Past listing photos
Sign in to take a closer look at how this home compares to similar homes.
Explore Park Slope
Transit
| Location | Distance |
|---|---|
Rat Union St | 0.17 miles |
BQat 7th Av | 0.43 miles |
23at Bergen St | 0.46 miles |
23at Grand Army Plaza | 0.49 miles |
FGRat 9th St | 0.54 miles |
About Park Slope
Rental prices shown are base rent before any fees. Visit listings for cost and fees breakdown.
SalesMedian asking price
1 bed
$795K
RentalsMedian asking base rent
1 bed
$3,600
Park Slope has a tranquil, easygoing vibe and can almost feel suburban. Strollers and children of all ages are a constant presence on sidewalks, as are shoppers patronizing local boutiques and dog walkers heading up to the park. Residents are Brooklynites through and through and tend to be socially conscious, artistically minded, and committed to their community. At night, a casual restaurant scene comes alive. For anyone looking for a night out, there are plenty of beer gardens and wine bars to patronize, especially in the South Slope, but don't go looking for dance clubs.
Learn more about Park Slope




























































































