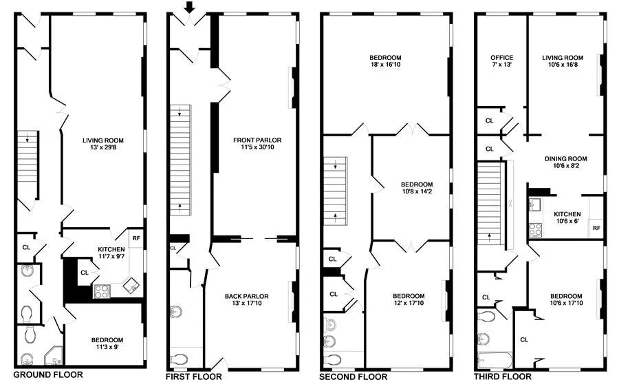
3,480 ft²
$344 per ft²
7 rooms
5 beds
5 baths
Three-family home
- Central Harlem
reported sale
Sold on 6/26/2013
Not yet verified by closing records
Seller's agents
Douglas Elliman
This home has been saved by 25 users.
Listing by Douglas Elliman, Limited Liability Broker, 477 Madison Avenue, New York, NY 10022 | Brokerage Listing ID: 1483886
Common charges
Not applicable
Estimated payment
$6,227/mo
Legal disclaimerAll calculations are estimates provided by StreetEasy for informational purposes only. Actual amounts or financing terms may vary. Please contact your mortgage provider for specifics.Taxes
No info
Tax abatement
No info
About
Seller’s agent
description
CONTRACT SIGNED 11.8.12 - ACCEPTED OFFER......8/9/12....Harlem’s newest population is refreshingly diverse, with residents who enjoy the neighborhood’s history, the gorgeous homes and un-renovated gems, oozing with potential. One of which is located on 138th Street & Edgecombe Ave. This Harlem Townhome sits on a gated corner lot with a one car garage and front patio. It has a view of St.
Policies
Sorry, policy info isn’t available right now. Check back later.
Home features
Fireplace
Building amenities
Services and facilities
Parking
Garage
Wellness and recreation
No info on wellness and recreation
Shared outdoor space
No info on shared outdoor space
About the building
68 Edgecombe Avenue
68 Edgecombe Avenue, New York, NY 10030
3 units
3 stories
1910 built
For sale
0 available units for saleFor rent
0 available units for rentDocuments and permits
View documents and permitsProperty history
- Price Change: No changes
- Days on market: 176 daysThis is the number of days the listing has been on StreetEasy.
| Date | Price | Event |
|---|---|---|
6/25/2013 | $1,050,000 | |
6/27/2013 | $1,200,000 | Sold by Douglas Elliman |
6/26/2013 | $1,200,000 | No longer available |
11/9/2012 | $1,200,000 | In contract |
5/17/2012 | $1,200,000 | Listed by Douglas Elliman |
Past listing photos
Sign in to take a closer look at how this home compares to similar homes.
Explore Central Harlem
Transit
| Location | Distance |
|---|---|
BCat 135th St | under 500 feet |
ABCDat 145th St | 0.35 miles |
23at 135th St | 0.42 miles |
1at 137th St–City College | 0.43 miles |
3at 145th St | 0.53 miles |
About Central Harlem
Rental prices shown are base rent before any fees. Visit listings for cost and fees breakdown.
SalesMedian asking price
5 beds
$2.75M
Harlem begins directly above Central Park, where you will find busy thoroughfares adjacent to quiet tree-lined blocks lined with brownstones and pre-war apartment buildings.
Learn more about Central Harlem























































































































































































