$1,000,000
For Sale
No longer available 10/16/2013
- ft²
8 rooms
6 beds
4 baths
Two-family home
- Crown Heights
Seller's agent
This home has been saved by 34 users.
Listing by Brown Harris Stevens, Real Estate Principal Office, 129 Montague Street, Brooklyn, NY 11201 | MLS #: 8717572
Common charges
Not applicable
Estimated payment
$5,149/mo
Legal disclaimerAll calculations are estimates provided by StreetEasy for informational purposes only. Actual amounts or financing terms may vary. Please contact your mortgage provider for specifics.Taxes
No info
Tax abatement
No info
About
Seller’s agent
description
CONTRACT SIGNED
Crown Heights Hidden Gem
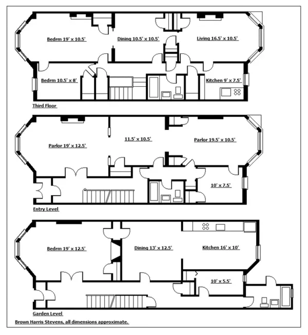
This 2 family brownstone contains Gorgeous decorative wood details, stained glass, ornate plaster ceiling medallions, decorative fireplaces, pocket doors, oversized bay windows and much more. The block, Park Place, is a really sweet block with beautiful architectural homes. This house needs a little TLC so bring your contractor to make your dreams come true.
Policies
Sorry, policy info isn’t available right now. Check back later.
Home features
Private outdoor space
Garden
Building amenities
No info on building amenities
About the building
680 Park Place
680 Park Place, Brooklyn, NY 11216
2 units
2 stories
1901 built
For sale
0 available units for saleFor rent
0 available units for rentDocuments and permits
View documents and permitsProperty history
- Price Change: No changes
- Days on market: 31 daysThis is the number of days the listing has been on StreetEasy.
| Date | Price | Event |
|---|---|---|
11/7/2013 | $1,360,000 | |
10/16/2013 | $1,000,000 | No longer available |
8/29/2013 | $1,000,000 | In contract |
7/29/2013 | $1,000,000 | Listed by Brown Harris Stevens |
Sign in to take a closer look at how this home compares to similar homes.
Explore Crown Heights
Transit
| Location | Distance |
|---|---|
Sat Park Place | 0.14 miles |
S2345at Franklin Av | 0.22 miles |
S2345at Botanic Gardens | 0.28 miles |
3at Nostrand Av | 0.36 miles |
25at President St | 0.45 miles |
About Crown Heights
Rental prices shown are base rent before any fees. Visit listings for cost and fees breakdown.
SalesMedian asking price
6 beds
$2.37M
RentalsMedian asking base rent
6 beds
$8,000
Crown Heights has a lot going on. From the chaotic, commercial avenues of Nostrand and Utica to the wide, tree-lined esplanades of Eastern Parkway, the streets are always filled with locals shopping, catching up on the corner, and keeping tabs on neighbors. Walk down any of these streets and you're likely to find music playing from idling cars and bright Caribbean flags hanging from windows of apartment buildings. Every Labor Day, Crown Heights hosts the West Indian Day Parade, one of the city's largest annual street festivals which draws thousands of people from around the city and the world. The mix of people in such close proximity makes Crown Heights a fascinating microcosm of New York City. Living here, you'll be surrounded by a community with deep roots and rich heritage.
Learn more about Crown Heights














































































































































