$17,500
For Rent
Base rent only. For total monthly price and additional fees, see .
3,200 ft²
$65 per ft²
6 rooms
4 beds
2.5 baths
Three-family home
- Vinegar Hill
Under NYC law, you can't be charged a broker fee if you didn't hire a broker.
Listed By
This home has been saved by 33 users.
Listing by Compass, Corporate Broker, 110 Fifth Avenue, New York, NY 10011
Available
Available now
Days on market
102 days
Last price change
↓ $2,500 (-12.5%) on 10/9/25
About
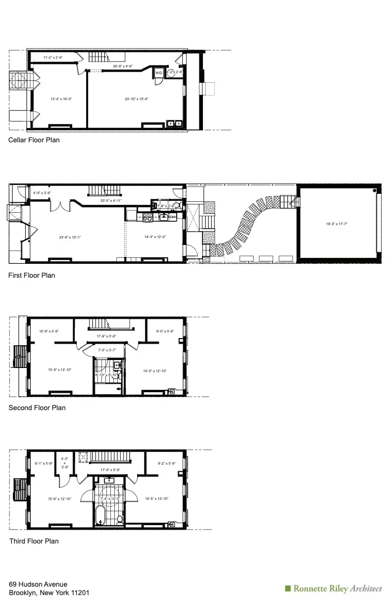
Set on a quiet cobblestoned corner of historic Vinegar Hill – and just moments from DUMBO, the Brooklyn Bridge Park waterfront, Downtown Brooklyn, and Navy Yard – this modernized 1817 landmarked townhouse with its own PRIVATE TWO-CAR GARAGE seamlessly blends historic character with contemporary appointments. One of just three original rowhouses still standing with intact storefront details, the home has just received a brand new, full-scale renovation.
Policies
Sorry, policy info isn’t available right now. Check back later.
Home features
Central air
Dishwasher
Fireplace
Hardwood floors
Private outdoor space
Garden
Washer/dryer
Building amenities
Services and facilities
Laundry in building
Parking
Garage
Wellness and recreation
No info on wellness and recreation
Shared outdoor space
Courtyard
About the building
69 Hudson Avenue
69 Hudson Avenue, Brooklyn, NY 11201
3 units
3 stories
1915 built
For rent
1 available units for rentProperty history
Prices shown are base rent only. For total monthly price and additional fees, see .
| Date | Base rent | Event |
|---|---|---|
10/9/2025 | $17,500 | Price decreased by 13% |
9/17/2025 | $20,000 | Listed by Compass |
Sign in to take a closer look at how this home compares to similar homes.
Explore Vinegar Hill
Transit
| Location | Distance |
|---|---|
Fat York St | 0.32 miles |
ACat High St | 0.46 miles |
ACFRat Jay St–MetroTech | 0.72 miles |
23at Clark St | 0.73 miles |
Ferryat Fulton Ferry Landing | 0.73 miles |
About Vinegar Hill
Rental prices shown are base rent before any fees. Visit listings for cost and fees breakdown.
RentalsMedian asking base rent
4 beds
$17,500
Bordered by a ConEdison substation, the Brooklyn Navy Yard, and the BQE, Vinegar Hill is a sleepy residential hamlet surrounded by imposing urban infrastructure. The combination of its cobblestone streets, wood frame houses, and lack of commercial activity gives the place a distinct small-town vibe. And by anyone's standards, the neighborhood is tiny — the 2012 U.S. Census listed less than 600 residents! Given its size and geographic isolation, it's no wonder Vinegar Hill has flown under the real estate radar for so long. But with its rustic appeal and proximity to the booming Dumbo, Vinegar Hill may well be one of New York City's next hottest neighborhoods. The lack of conveniences (read: no grocery stores and long walks to the subway), however, are still a deterrent for many potential residents and keep the neighborhood small and quiet.
Learn more about Vinegar HillSimilar homes
Prices shown are base rent only and don't include any fees. Visit each listing to see a complete cost breakdown.
Similar Homes looks at ad spend and other factors like location, price, and number of beds and baths.


































































































































































































































