$419,000
For Sale
No longer available 10/2/2019
760 ft²
$551 per ft²
2 rooms
2 beds
1 bath
Condo
- Hoboken
Seller's agent
REMAX ON THE HUDSON
This home has been saved by 13 users.
Listing by REMAX ON THE HUDSON | MLS #: 190015296
Common charges
No info
Estimated payment
$2,315/mo
Taxes
No info
Tax abatement
No info
About
Seller’s agent
description
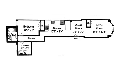
One of the most appealing and prime locations in midtown Hoboken, this 760sq foot renovated home is move in ready! The long and spatially diversified floor plan is currently converted from a 2 bedroom down to a 1 bedroom with den/dining room area. With the addition of French doors, this home can be simply returned to a 2 bedroom if desired.
Policies
Sorry, policy info isn’t available right now. Check back later.
Home features
No info on home features
Building amenities
No info on building amenities
About the building
703 Park Avenue
703 Park Avenue, Hoboken, NJ 07030
- units
- stories
- built
Property history
- Price Change: ↓ $30,000 (-6.7%) on 8/22/19
- Days on market: 62 days
| Date | Price | Event |
|---|---|---|
10/2/2019 | $419,000 | No longer available |
8/22/2019 | $419,000 | Price decreased by 7% |
8/1/2019 | $449,000 | Listed by REMAX ON THE HUDSON |
Sign in to take a closer look at how this home compares to similar homes.
Explore Hoboken
Transit
| Location | Distance |
|---|---|
HBLRat 9th Street/Congress St | 0.45 miles |
HBLRat 2nd Street | 0.69 miles |
HBLRPATHat Hoboken Terminal | 0.74 miles |
HBLRat Lincoln Harbor | 1.18 miles |
PATHat Pavonia/Newport Station | 1.3 miles |
































































































































































