$899,000
for sale
3,700 ft²
$242 per ft²
14 rooms
7 beds
3 baths
Two-family home
- Canarsie
Resale
This home has been saved by 8 users.
Listing by Corcoran, Limited Liability Broker, 1413 Fulton Street, Brooklyn, NY 11216
Common charges
Not applicable
Estimated payment
$5,292/mo
Taxes
$736/mo
Tax abatement
No info
About
Seller’s agent
Description
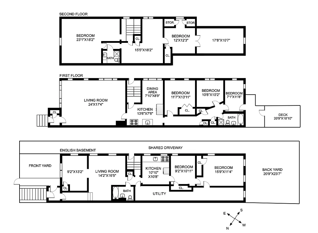
Bring your architect and contractor to this fully detached two-family brick home awaiting your renovation.
-Building: fully detached two-family
-Built: 19' x 70'
-Approx. living area: 3,700 SF
-Lot: 23.67' x 100'
-Shared driveway, rear deck
-Located near Brookdale Hospital and Brooklyn Terminal Market
-Ideal for rehab or conversion
Policies
Sorry, policy info isn’t available right now. Check back later.
Home features
No info on home features
Building amenities
No info on building amenities
About the building
718 East 93rd Street
718 East 93rd Street, Brooklyn, NY 11236
2 units
1 story
1935 built
Property history
- Price Change: No changes
- Days on market: 85 days
| Date | Price | Event |
|---|---|---|
2/17/2026 | $899,000 | Listed by Corcoran |
Sign in to take a closer look at how this home compares to similar homes.
Explore Canarsie
Transit
| Location | Distance |
|---|---|
Lat Canarsie–Rockaway Parkway | 0.67 miles |
Lat East 105th St | 0.77 miles |
3at Saratoga Av | 0.77 miles |
3at Rockaway Av | 0.88 miles |
Lat New Lots Av | 0.97 miles |





























































































































