View this home virtually
$14,000
For Rent
Base rent only. For total monthly price and additional fees, see .
No longer available 4/2/2025
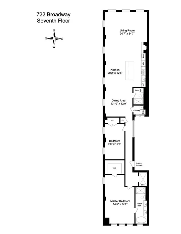
2,250 ft²
$74 per ft²
5 rooms
2 beds
2 baths
Co-op
- Noho
Under NYC law, you can't be charged a broker fee if you didn't hire a broker.
Listed By
This home has been saved by 209 users.
Listing by Brown Harris Stevens, Real Estate Principal Office, 445 Park Avenue, New York, NY 10022
Unavailable
No longer available on 4/2/2025
Days on market
191 days
Last price change
↓ $1,000 (-6.7%) on 1/17/25
About
Breathtaking two bedrooms two bathrooms loft rental now available at 722 Broadway. This apartment will be delivered "semi furnished" NO SHORT TERM LEASE or PETS ALLOWED!! This rare offering features a fully renovated loft home in the center of trendy NoHo. Stunning full floor loft with private keyed elevator boasting exceptional renovations and sunlight.
Policies
Pets allowed
Cats and dogs allowed
Home features
Central air
Dishwasher
Furnished
Hardwood floors
View
City
Washer/dryer
Building amenities
Services and facilities
Elevator
Wellness and recreation
No info on wellness and recreation
Shared outdoor space
No info on shared outdoor space
About the building
722 Broadway
722 Broadway, New York, NY 10003
9 units
9 stories
1900 built
Property history
Prices shown are base rent only. For total monthly price and additional fees, see .
| Date | Base rent | Event |
|---|---|---|
4/2/2025 | $14,000 | No longer available |
2/1/2025 | $14,000 | In contract |
1/17/2025 | $14,000 | Price decreased by 7% |
11/8/2024 | $15,000 | Listed by Brown Harris Stevens |
10/8/2024 | $15,000 | Temporarily off market |
Past listing photos
Sign in to take a closer look at how this home compares to similar homes.
Explore Noho
Transit
| Location | Distance |
|---|---|
RWat 8th St–NYU | under 500 feet |
6at Astor Place | 0.12 miles |
BDFM6at Bleecker St | 0.22 miles |
BDFM6at Broadway–Lafayette St | 0.28 miles |
Fat 2nd Av | 0.37 miles |
Similar homes
Prices shown are base rent only and don't include any fees. Visit each listing to see a complete cost breakdown.
Similar Homes looks at ad spend and other factors like location, price, and number of beds and baths.



























































































































































