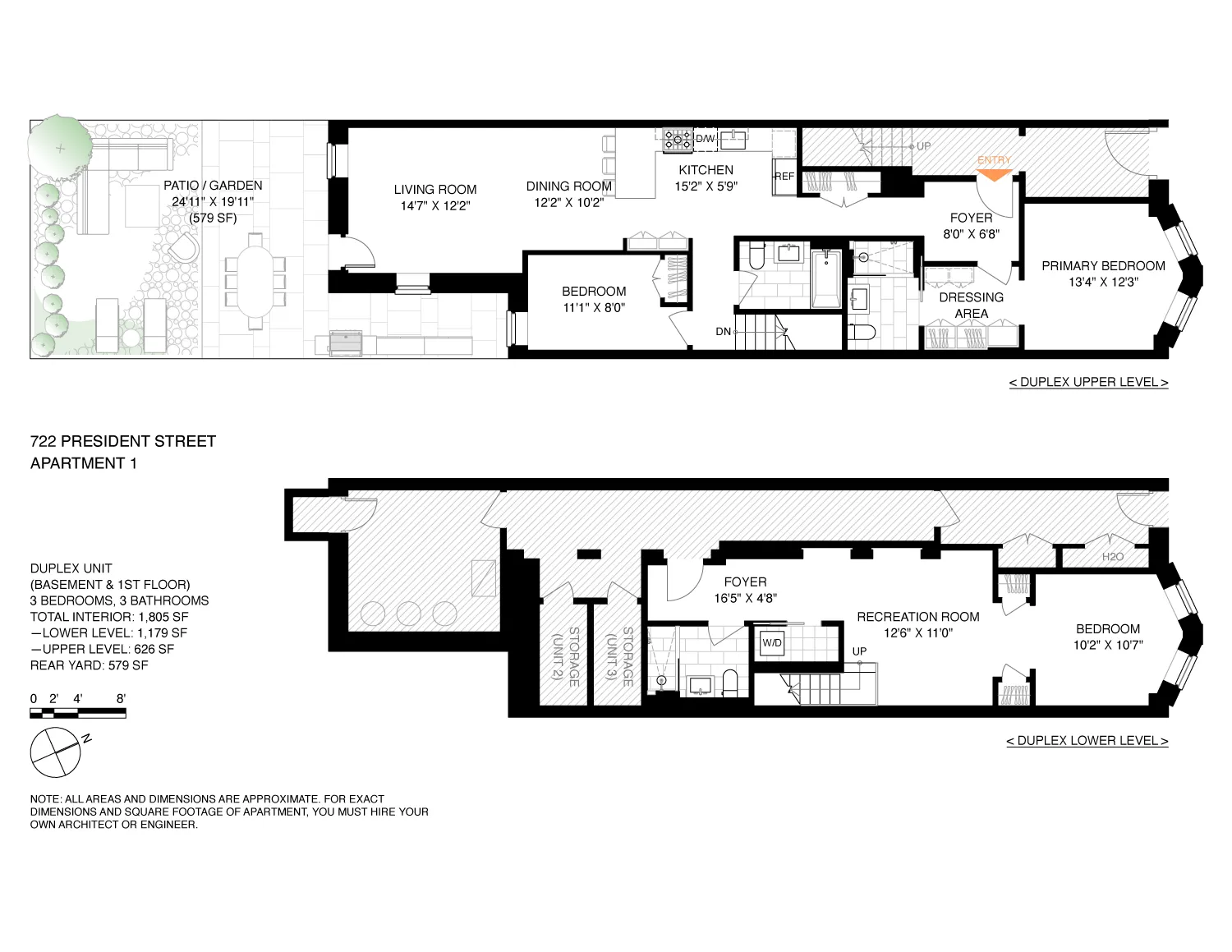
1,805 ft²
$1,528 per ft²
6 rooms
3 beds
3 baths
Condo
- Park Slope
Sponsor unit
Sponsor unitA unit being sold for the first time. It’s typically owned by the building. For condos, this is often the developer. For co-ops, this is often the building’s original owner before it went co-op.
recorded sale
Sold on 10/24/2025
Verified by closing records
Last listed for $2,700,000
Seller's agent
This home has been saved by 101 users.
Listing by Corcoran, Limited Liability Broker, 794 Union Street, Brooklyn, NY 11215
Common charges
$762/mo
Estimated payment
$14,938/mo
Legal disclaimerAll calculations are estimates provided by StreetEasy for informational purposes only. Actual amounts or financing terms may vary. Please contact your mortgage provider for specifics.Taxes
$744/mo
Tax abatement
No info
About
Seller’s agent
Buyer’s agent
description
722 President Street Park Slope. Historic Roots. Modern Form.
Apartment 1 is a three-bedroom, three-bathroom parlor level duplex with a private, landscaped garden - offering the scale and privacy of a townhouse with the ease of condominium living. Thoughtfully designed across two floors, this home is one of just three in a carefully executed brownstone conversion that respects historic context while embracing a modern point of view.
Policies
Sorry, policy info isn’t available right now. Check back later.
Home features
Central air
Dishwasher
Hardwood floors
Private outdoor space
Garden
View
Garden
Washer/dryer
Building amenities
Services and facilities
No info on services and facilities
Wellness and recreation
No info on wellness and recreation
Shared outdoor space
Courtyard
About the building
722 President Street
722 President Street, Brooklyn, NY 11215
3 units
3 stories
1899 built
For sale
0 available units for saleFor rent
0 available units for rentDocuments and permits
View documents and permitsProperty history
- Price Change: No changes
- Days on market: 17 daysThis is the number of days the listing has been on StreetEasy.
| Date | Price | Event |
|---|---|---|
10/24/2025 | $2,759,457 | Sold by Corcoran |
8/2/2025 | $2,700,000 | In contract |
7/16/2025 | $2,700,000 | Listed by Corcoran |
Past listing photos
Sign in to take a closer look at how this home compares to similar homes.
Explore Park Slope
Transit
| Location | Distance |
|---|---|
Rat Union St | 0.26 miles |
BQat 7th Av | 0.37 miles |
23at Grand Army Plaza | 0.41 miles |
23at Bergen St | 0.45 miles |
Fat 7th Av | 0.55 miles |
About Park Slope
Rental prices shown are base rent before any fees. Visit listings for cost and fees breakdown.
SalesMedian asking price
3 beds
$2.4M
RentalsMedian asking base rent
3 beds
$6,200
Park Slope has a tranquil, easygoing vibe and can almost feel suburban. Strollers and children of all ages are a constant presence on sidewalks, as are shoppers patronizing local boutiques and dog walkers heading up to the park. Residents are Brooklynites through and through and tend to be socially conscious, artistically minded, and committed to their community. At night, a casual restaurant scene comes alive. For anyone looking for a night out, there are plenty of beer gardens and wine bars to patronize, especially in the South Slope, but don't go looking for dance clubs.
Learn more about Park Slope












































































































































































