Skip Navigation
StreetEasy Logo

$2,350,000

For Sale

4,820 ft²

$487 per ft²

12 rooms

5 beds

3+ baths

WANT TO STAY UPDATED?Save this home for email and push notifications on price and more.

This home has been saved by 24 users.

Open House

Sun, Dec 7 (1–2 PM ET)

Listing by Compass, Corporate Broker, 110 5th Avenue, New York, NY 10011

Listing updated in the last 2 days

Common charges

Not applicable

Estimated payment

Arrow icon$13,067/mo

Legal disclaimerAll calculations are estimates provided by StreetEasy for informational purposes only. Actual amounts or financing terms may vary. Please contact your mortgage provider for specifics.

Taxes

$1,029/mo

Tax abatement

No info

About

Seller’s agent

/

Tali Berzak

Licensed Associate Real Estate Broker

Compass

Kyle Meagher

Licensed Real Estate Salesperson

Compass

Isaac Metcalf

Licensed Real Estate Salesperson

Compass

description

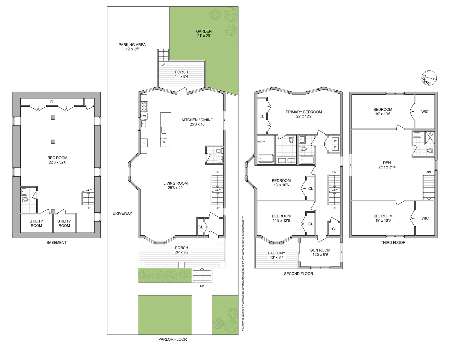
Originally constructed in 1905 on a picturesque, tree-lined block in Ditmas Park, 728 Westminster Rd has been meticulously renovated to seamlessly blend historic charm with modern luxury. This distinguished, detached single-family home features 5 bedrooms, 3 full bathrooms, and 2 powder rooms, all complemented by high-end finishes, original details, and state-of-the-art technology.

Policies

Sorry, policy info isn’t available right now. Check back later.

Home features

  • Central air

  • Dishwasher

  • Hardwood floors

  • Private outdoor space

    Balcony, Garden

  • Washer/dryer

Building amenities

No info on building amenities

About the building

728 Westminster Road

728 Westminster Road, Brooklyn, NY 11230

Single-family house in Midwood

1 unit

3 stories

1905 built

Property history

  • Price Change: No changes
  • Days on market: 28 daysThis is the number of days the listing has been on StreetEasy.
DatePriceEvent

11/6/2025

$2,350,000

Listed by Compass

Sign in to take a closer look at how this home compares to similar homes.

Explore Midwood

Transit

LocationDistance

BQat Av H

0.24 miles

BQat Newkirk Av

0.3 miles

BQat Av J

0.48 miles

Fat 18th Av

0.6 miles

Fat Av I

0.66 miles