View this home virtually
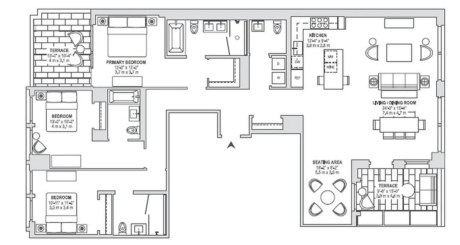
1,972 ft²
$2,136 per ft²
5 rooms
3 beds
3.5 baths
Condo
- Hudson Square
Sponsor unit
Sponsor unitA unit being sold for the first time. It’s typically owned by the building. For condos, this is often the developer. For co-ops, this is often the building’s original owner before it went co-op.
recorded sale
Sold on 6/28/2021
Verified by closing records
Last listed for $4,425,000
Seller's agent
This home has been saved by 174 users.
Listing by Toll Brothers, Corporate Broker, 75 Broad Street, New York, NY 10004 | Brokerage Listing ID: 2487449
Common charges
$2,476/mo
Estimated payment
$28,829/mo
Legal disclaimerAll calculations are estimates provided by StreetEasy for informational purposes only. Actual amounts or financing terms may vary. Please contact your mortgage provider for specifics.Taxes
$3,538/mo
Tax abatement
No info
About
Seller’s agent
Buyer’s agent
description
SALES GALLERY NOW OPEN BY APPOINTMENT DAILY.
Projected occupancy is Spring 2021.
Located in the heart of West Soho, steps to some of the city's finest dining, shopping and galleries, 77 Charlton is a full-service condominium from Toll Brothers City Living. Encompassing two residential towers which surround a private landscaped courtyard, the 164 residences range in size from studio to three bedrooms.
Policies
Pets allowed
Home features
Dishwasher
Private outdoor space
Garden, Terrace
Washer/dryer
Building amenities
Services and facilities
Doorman
Elevator
Laundry in building
Wellness and recreation
Gym
Swimming pool
Shared outdoor space
No info on shared outdoor space
About the building
77 Charlton Street
77 Charlton Street, New York, NY 10014
161 units
15 stories
2020 built
For sale
1 available units for saleFor rent
1 available units for rentDocuments and permits
View documents and permitsProperty history
- Price Change: No changes
- Days on market: 572 daysThis is the number of days the listing has been on StreetEasy.
| Date | Price | Event |
|---|---|---|
6/28/2021 | $4,213,656 | Sold by Toll Brothers |
7/13/2021 | $4,425,000 | No longer available |
3/29/2021 | $4,425,000 | In contract |
9/3/2019 | $4,425,000 | Listed by Toll Brothers |
Past listing photos
Sign in to take a closer look at how this home compares to similar homes.
Explore Hudson Square
Transit
| Location | Distance |
|---|---|
1at Houston St | under 500 feet |
CEat Spring St | 0.17 miles |
1at Canal St | 0.34 miles |
ABCDEFMat West 4th St | 0.34 miles |
PATHat Christopher Street Station | 0.37 miles |




































































































































































