$310,000
For Sale
Delisted 5/6/2024
700 ft²
$442 per ft²
1 room
1 bed
1 bath
Co-op
- Forest Hills
Resale
Seller's agents
This home has been saved by 163 users.
Listing by Landmarc Group, Limited Liability Broker, 118-21 Queens Boulevard, Forest Hills, NY 11375
Maintenance fees
$830/mo
Estimated payment
$2,398/mo
Legal disclaimerAll calculations are estimates provided by StreetEasy for informational purposes only. Actual amounts or financing terms may vary. Please contact your mortgage provider for specifics.Taxes
Included in maintenance fees
Tax abatement
No info
About
Seller’s agent
description
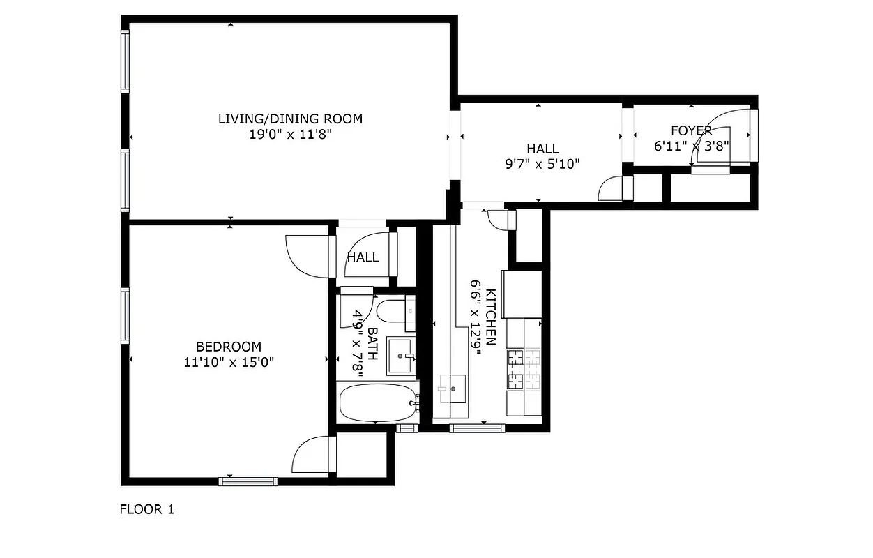
Top floor airy and sun-filled one bedroom apartment perfectly proportioned for comfortable living and entertaining! A welcoming entry foyer leads to an office/dining area that opens to the bright and spacious living room. The fully equipped kitchen has custom made cabinets, gorgeous quartz countertops, tile backsplash to match and a cozy breakfast nook.
Policies
Sorry, policy info isn’t available right now. Check back later.
Home features
Hardwood floors
Building amenities
Services and facilities
Laundry in building
Live-in super
Wellness and recreation
No info on wellness and recreation
Shared outdoor space
No info on shared outdoor space
About the building
77-20 Austin Street
77-20 Austin Street, Forest Hills, NY 11375
72 units
6 stories
1929 built
For sale
2 available units for saleFor rent
0 available units for rentDocuments and permits
View documents and permitsProperty history
- Price Change: ↓ $5,000 (-1.6%) on 11/1/21
- Days on market: 966 daysThis is the number of days the listing has been on StreetEasy.
| Date | Price | Event |
|---|---|---|
5/6/2024 | $310,000 | Delisted by Landmarc Group |
11/1/2021 | $310,000 | Price decreased by 2% |
9/13/2021 | $315,000 | Listed by Landmarc Group |
8/19/2013 | $150,000 |
Sign in to take a closer look at how this home compares to similar homes.
Explore Forest Hills
Transit
| Location | Distance |
|---|---|
EFat Kew Gardens–Union Turnpike | 0.17 miles |
EFat 75th Av | 0.27 miles |
LIRRat Kew Gardens | 0.39 miles |
LIRRat Forest Hills | 0.62 miles |
EFMRat Forest Hills–71st Av | 0.66 miles |
About Forest Hills
Rental prices shown are base rent before any fees. Visit listings for cost and fees breakdown.
SalesMedian asking price
1 bed
$329K
RentalsMedian asking base rent
1 bed
$2,600
Bisected by Queens Boulevard, Forest Hills offers two types of city living: Urban apartment complexes on one side and the other, the storied Forest Hills Gardens. Whichever side of the boulevard you live on, this suburban neighborhood is teeming with lots of public outdoor space. Another good to know, many residents own a car.
Learn more about Forest Hills






































































































































