- ft²
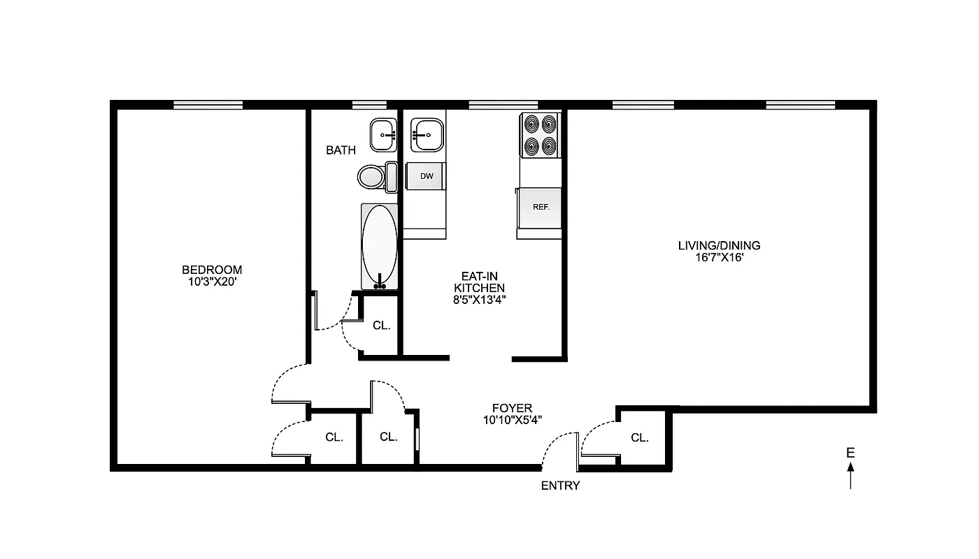
3 rooms
1 bed
1 bath
Co-op
- Park Slope
Sponsor unit
Sponsor unitA unit being sold for the first time. It’s typically owned by the building. For condos, this is often the developer. For co-ops, this is often the building’s original owner before it went co-op.
recorded sale
Sold on 1/23/2025
Verified by closing records
Last listed for $799,000
Seller's agents
This home has been saved by 50 users.
Listing by Corcoran, Limited Liability Broker, 1 Pierrepont Plz, Brooklyn, NY 11201
Maintenance fees
$1,572/mo
Estimated payment
Taxes
Included in maintenance fees
Tax abatement
No info
About
Seller’s agent
description
Sponsor Sale – no Board Approval required for purchase.
Available for the first time, residence 4G has been fully renovated from top to bottom. There is recessed lighting and brand-new oak flooring throughout. The east facing windows frame sunlit trees with blue skies over the roofs of the beautiful townhouses across 8th ave. High ceilings ensure that every ray of sunlight comes into the space.
Policies
Pets allowed
Cats and dogs allowed
Home features
Dishwasher
Hardwood floors
Building amenities
Services and facilities
Bike room
Elevator
Laundry in building
Live-in super
Package room
Storage space
Locker/cage
Wellness and recreation
Children's playroom
Shared outdoor space
Courtyard
About the building
78 8th Avenue
78 8th Avenue, Brooklyn, NY 11215
58 units
6 stories
1923 built
For sale
1 available units for saleFor rent
0 available units for rentDocuments and permits
View documents and permitsProperty history
- Price Change: No changes
- Days on market: 26 daysThis is the number of days the listing has been on StreetEasy.
| Date | Price | Event |
|---|---|---|
1/23/2025 | $800,000 | Sold by Corcoran |
12/2/2024 | $799,000 | In contract |
11/6/2024 | $799,000 | Listed by Corcoran |
Past listing photos
Sign in to take a closer look at how this home compares to similar homes.
Explore Park Slope
Transit
| Location | Distance |
|---|---|
23at Grand Army Plaza | 0.17 miles |
BQat 7th Av | 0.28 miles |
23at Eastern Parkway–Brooklyn Museum | 0.49 miles |
23at Bergen St | 0.51 miles |
Rat Union St | 0.57 miles |
About Park Slope
Rental prices shown are base rent before any fees. Visit listings for cost and fees breakdown.
SalesMedian asking price
1 bed
$799K
RentalsMedian asking base rent
1 bed
$3,600
Park Slope has a tranquil, easygoing vibe and can almost feel suburban. Strollers and children of all ages are a constant presence on sidewalks, as are shoppers patronizing local boutiques and dog walkers heading up to the park. Residents are Brooklynites through and through and tend to be socially conscious, artistically minded, and committed to their community. At night, a casual restaurant scene comes alive. For anyone looking for a night out, there are plenty of beer gardens and wine bars to patronize, especially in the South Slope, but don't go looking for dance clubs.
Learn more about Park Slope




























































































































