1,844 ft²
$1,624 per ft²
6 rooms
4 beds
3 baths
Condo
- Williamsburg
Resale
reported sale
Sold on 9/6/2024
Not yet verified by closing records
Seller's agents
This home has been saved by 51 users.
Listing by Brown Harris Stevens, Real Estate Principal Office, 100 Fifth Avenue, New York, NY 10011
Common charges
$1,989/mo
Estimated payment
$17,197/mo
Legal disclaimerAll calculations are estimates provided by StreetEasy for informational purposes only. Actual amounts or financing terms may vary. Please contact your mortgage provider for specifics.Taxes
$64/mo
Tax abatement
421a expires in 2035
About
Seller’s agent
description
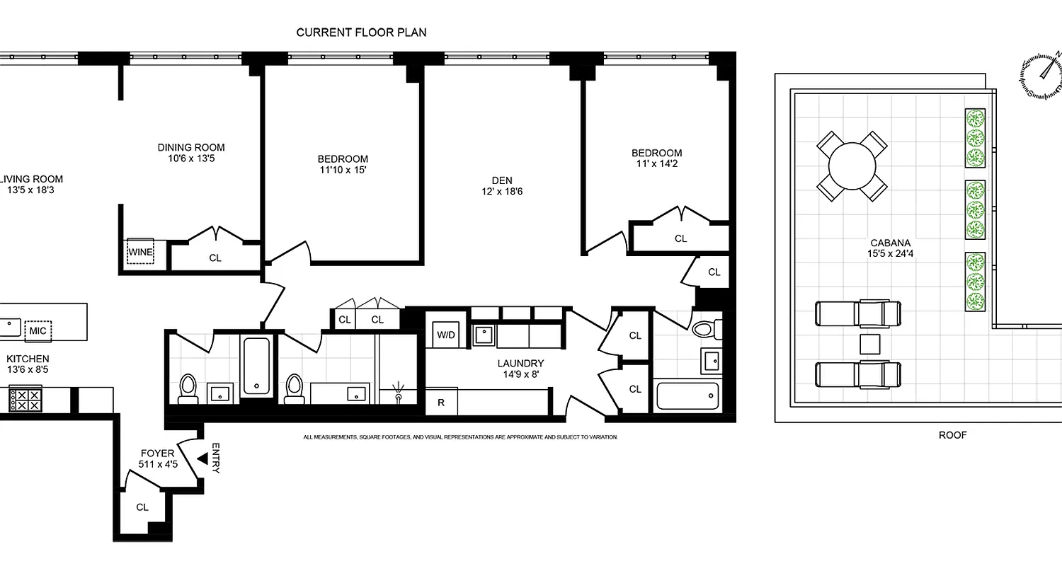
First time available! Welcome to 5AD, an expansive and flexible 3-4 bedroom, 3 bathroom (currently set up as a two bedroom) with separate dining and your own private outdoor roof top cabana at 80 Metropolitan. A rare combination, this sumptuous home is the largest in the building at nearly 1,850 square feet and includes a separate dining room and its own den.
Policies
Pets allowed
Cats and dogs allowed
Home features
Dishwasher
Hardwood floors
Private outdoor space
Roof deck
View
City, Skyline, Water
Washer/dryer
Building amenities
Services and facilities
Bike room
Doorman
Full-time
Elevator
Live-in super
Parking
Garage
Storage space
Cold storage, Locker/cage
Wellness and recreation
Gym
Swimming pool
Shared outdoor space
Courtyard
Roof deck
About the building
80 Metropolitan Avenue
80 Metropolitan Avenue, Brooklyn, NY 11249
123 units
5 stories
2007 built
For sale
1 available units for saleFor rent
1 available units for rentDocuments and permits
View documents and permitsProperty history
- Price Change: No changes
- Days on market: 55 daysThis is the number of days the listing has been on StreetEasy.
| Date | Price | Event |
|---|---|---|
9/6/2024 | $2,995,000 | Sold by Brown Harris Stevens |
6/27/2024 | $2,995,000 | In contract |
5/3/2024 | $2,995,000 | Listed by Brown Harris Stevens |
Past listing photos
Sign in to take a closer look at how this home compares to similar homes.
Explore Williamsburg
Transit
| Location | Distance |
|---|---|
Ferryat North 5th Street Ferry landing | 0.23 miles |
Lat Bedford Av | 0.34 miles |
Ferryat South 8th Street Ferry landing | 0.53 miles |
JMZat Marcy Av | 0.62 miles |
GLat Metropolitan Av | 0.68 miles |
About Williamsburg
Rental prices shown are base rent before any fees. Visit listings for cost and fees breakdown.
SalesMedian asking price
4 beds
$4M
RentalsMedian asking base rent
4 beds
$8,995
Williamsburg is Brooklyn's booming epicenter with a well-deserved and worldwide reputation for being an influential hub thanks to a thriving cultural scene. Here you will find eye-catching new construction, brownstones, and prewars sitting next to historic buildings on streets dotted with restaurants, art spaces, boutiques, and more. With a Manhattan-facing waterfront (hello Domino Park!) and its large weekend markets (we're talking about you, Smorgasburg, and Artists & Fleas), the neighborhood is ideal for strolling and people watching. Another fringe benefit is Williamsburg's proximity to Manhattan via the G, L, M, and N subway lines.
Learn more about Williamsburg



































































































































































