- ft²
11 rooms
4 beds
3.5 baths
Co-op
- Lenox Hill
Resale
reported sale
Sold on 9/12/2019
Not yet verified by closing records
Seller's agents
This home has been saved by 25 users.
Listing by Brown Harris Stevens, Real Estate Principal Office, 445 Park Avenue, New York, NY 10022
Maintenance fees
$13,444/mo
Estimated payment
$142,332/mo
Taxes
Included in maintenance fees
Tax abatement
No info
About
Seller’s agent
description
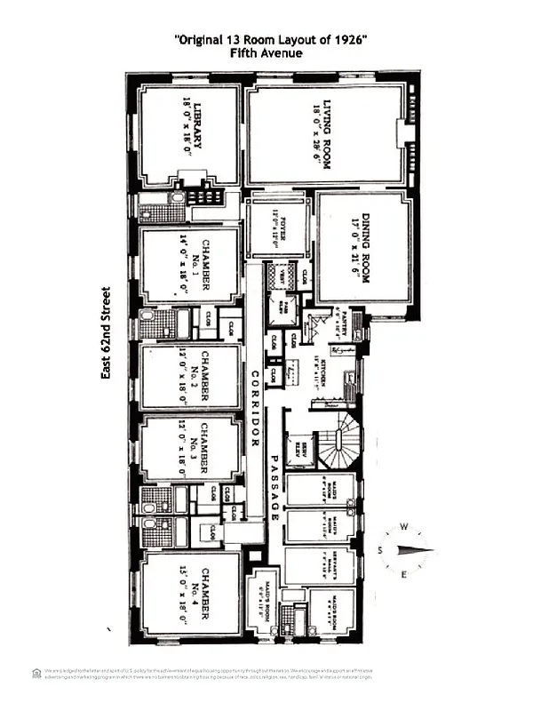
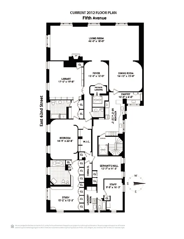
Located in one of Manhattan's finest prewar apartment buildings, this sprawling 11-room full-floor residence offers grand scale and spectacular park and city views. The unobstructed view down Fifth Ave from 62nd street to The Plaza and the Empire State Building celebrates the meaning of location. 50-feet of frontage on Central Park, this sophisticated 11th floor apartment is filled with glorious light streaming in from 22 windows, across 4 exposures.
Policies
Pets allowed
Cats and dogs allowed
Home features
Fireplace
Building amenities
Services and facilities
Doorman
Full-time
Elevator
Wellness and recreation
No info on wellness and recreation
Shared outdoor space
No info on shared outdoor space
About the building
810 5th Avenue
810 5th Avenue, New York, NY 10065
12 units
13 stories
1926 built
For sale
0 available units for saleFor rent
0 available units for rentDocuments and permits
View documents and permitsProperty history
- Price Change: No changes
- Days on market: 174 days
| Date | Price | Event |
|---|---|---|
1/3/2019 | $24,000,000 | |
6/20/2018 | $24,000,000 | |
4/20/2018 | $24,000,000 | |
9/12/2019 | $24,000,000 | Sold by Brown Harris Stevens |
9/9/2018 | $24,000,000 | In contract |
Past listing photos
Sign in to take a closer look at how this home compares to similar homes.
Explore Lenox Hill
Transit
| Location | Distance |
|---|---|
NRat 59th St | under 500 feet |
FQat Lexington Av/63rd St | 0.26 miles |
NRW456at Lexington Av/59th St | 0.28 miles |
Fat 57th St | 0.31 miles |
6at 68th St–Hunter College | 0.38 miles |







































































































































































