$16,000,000
For Sale
Delisted 10/12/2016
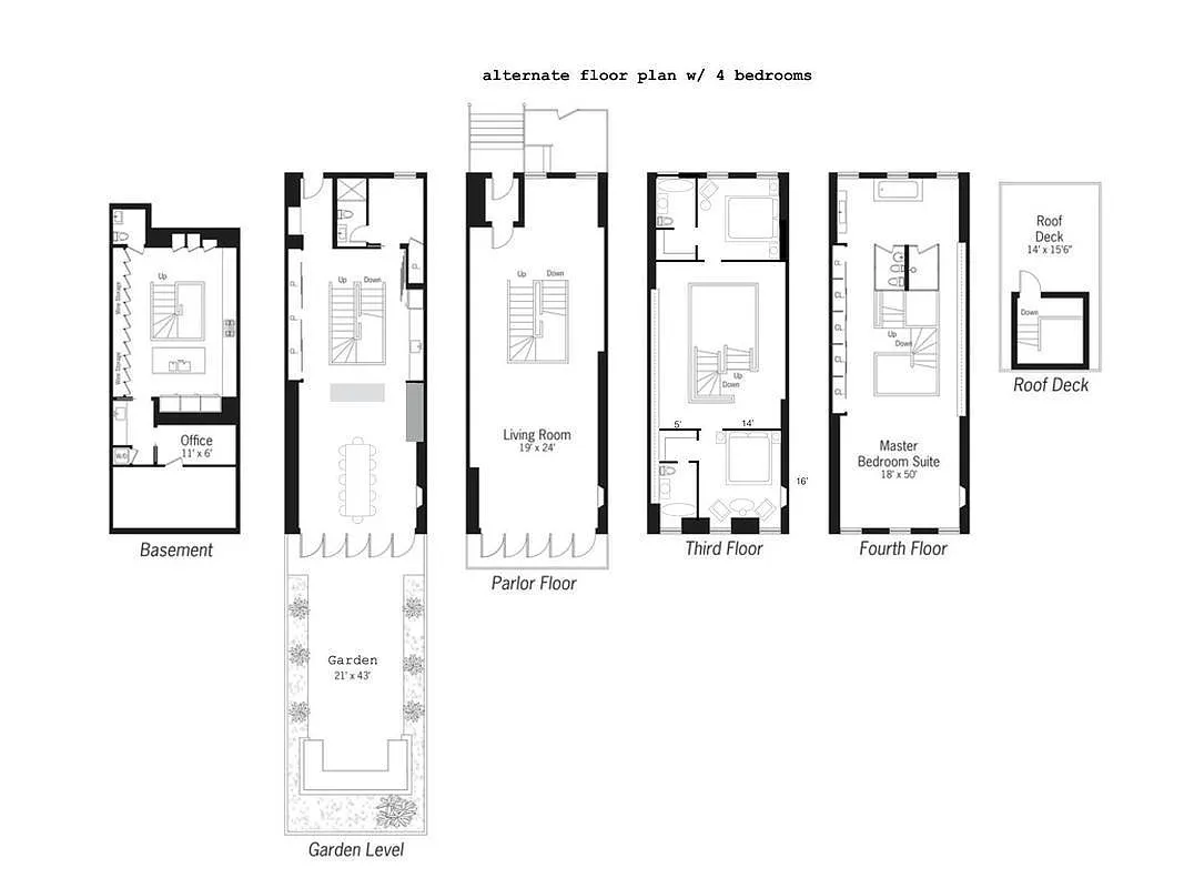
5,000 ft²
$3,200 per ft²
4 rooms
2 beds
3 baths
House
- West Village
Seller's agent
This home has been saved by 104 users.
Listing by Douglas Elliman, Limited Liability Broker, 111 5th Avenue, New York, NY 10003 | Brokerage Listing ID: 2087681
Common charges
Not applicable
Estimated payment
$81,393/mo
Legal disclaimerAll calculations are estimates provided by StreetEasy for informational purposes only. Actual amounts or financing terms may vary. Please contact your mortgage provider for specifics.Taxes
$3,635/mo
Tax abatement
No info
About
Seller’s agent
description
Located on one of the most picturesque tree lined streets in Greenwich Village, this sophisticated, elegant and exceptional home was designed by acclaimed English architect David Chipperfield with interiors by David Mlinaric.
The 21' wide light filled, minimalist and utterly private residence offers open loft living in a gorgeous townhouse setting.
Policies
Sorry, policy info isn’t available right now. Check back later.
Home features
Fireplace
Loft
Private outdoor space
Garden, Terrace
Building amenities
Services and facilities
No info on services and facilities
Wellness and recreation
No info on wellness and recreation
Shared outdoor space
Roof deck
About the building
83 Leroy Street
83 Leroy Street, New York, NY 10014
1 unit
3 stories
1901 built
For sale
0 available units for saleFor rent
0 available units for rentDocuments and permits
View documents and permitsProperty history
- Price Change: ↓ $1,500,000 (-8.6%) on 2/29/16
- Days on market: 547 daysThis is the number of days the listing has been on StreetEasy.
| Date | Price | Event |
|---|---|---|
2/14/2018 | $12,900,000 | |
4/23/2018 | $13,995,000 | |
10/30/2017 | $13,995,000 | |
9/18/2017 | $13,995,000 | |
10/18/2017 | $16,000,000 | Delisted by Douglas Elliman |
Past listing photos
Sign in to take a closer look at how this home compares to similar homes.
Explore West Village
Transit
| Location | Distance |
|---|---|
1at Houston St | 0.12 miles |
PATHat Christopher Street Station | 0.2 miles |
ABCDEFMat West 4th St | 0.24 miles |
1at Christopher St–Sheridan Sq | 0.26 miles |
CEat Spring St | 0.31 miles |
About West Village
Rental prices shown are base rent before any fees. Visit listings for cost and fees breakdown.
SalesMedian asking price
2 beds
$2.75M
RentalsMedian asking base rent
2 beds
$7,495
Picture a romantic comedy set in New York City: The heroine invariably lives in a cozy walk-up on a cobblestone street in a neighborhood with cute boutiques and trendy cafes on every corner. This movie is set in the West Village. In reality, the West Village is just as picturesque: The neighborhood is tucked between Greenwich Village and the Hudson River and is one of the quietest and most sophisticated pockets of Downtown Manhattan. Primarily residential, with a distinct lack of office buildings, the leafy, off-the-grid streets are peaceful during the day but get livelier at night. That's when well-heeled residents, fashionistas, and literati can all be found mingling over oysters at the area's many low-lit cocktail bars.
Learn more about West Village
































































































































































































































