1,821 ft²
$658 per ft²
4 rooms
2 beds
2 baths
Condo
- Tribeca
reported sale
Sold on 10/8/2009
Not yet verified by closing records
Seller's agents
Douglas Elliman
This home has been saved by 57 users.
Listing by Douglas Elliman, Limited Liability Broker | MLS #: 173819
Common charges
$500/mo
Estimated payment
Taxes
$375/mo
Tax abatement
No info
About
Seller’s agent
description
CONTRACT SIGNED... $659psf!!! Finally an amazing investment opportunity in TriBeca!!! Apartment 5 at 83 Murray Street is now taking offers starting at $1,200,000!! This unique TriBeCa loft is located on a great block and it’s ready for your personal touch. Bring your architect.
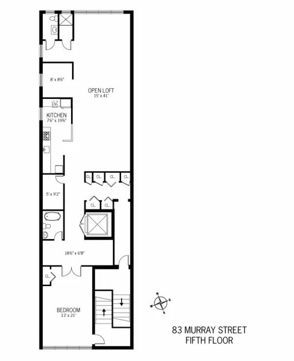
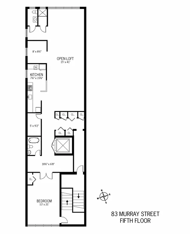
The fifth floor loft at 83 Murray St. features 10-foot ceilings, 3 exposures, and a flexible layout.Policies
Sorry, policy info isn’t available right now. Check back later.
Home features
No info on home features
Building amenities
Services and facilities
Elevator
Wellness and recreation
No info on wellness and recreation
Shared outdoor space
No info on shared outdoor space
About the building
83 Murray Street
83 Murray Street, New York, NY 10007
5 units
6 stories
1924 built
For sale
0 available units for saleFor rent
0 available units for rentDocuments and permits
View documents and permitsProperty history
- Price Change: ↓ $295,000 (-19.7%) on 5/7/09
- Days on market: 157 daysThis is the number of days the listing has been on StreetEasy.
| Date | Price | Event |
|---|---|---|
12/3/2010 | $1,200,000 | Sold by Douglas Elliman |
8/10/2010 | $1,200,000 | No longer available |
10/8/2009 | $1,200,000 | No longer available |
7/18/2009 | $1,200,000 | In contract |
5/7/2009 | $1,200,000 | Price decreased by 20% |
Sign in to take a closer look at how this home compares to similar homes.
Explore Tribeca
Transit
| Location | Distance |
|---|---|
123at Chambers St | under 500 feet |
ACE23at Chambers St | 0.12 miles |
Eat World Trade Center | 0.13 miles |
1at WTC Cortlandt | 0.22 miles |
AC23at Park Place | 0.22 miles |
About Tribeca
Rental prices shown are base rent before any fees. Visit listings for cost and fees breakdown.
SalesMedian asking price
2 beds
$3.3M
RentalsMedian asking base rent
2 beds
$9,375
Tribeca is an upscale neighborhood known for high-end real estate and well-heeled residents — a downtown haven for European cars and pedigreed dogs. It's also a truly gorgeous area that mixes glorious old cast-iron lofts, wide cobblestone streets, and dramatic new buildings. Decades ago, these lofts housed artists and squatters. But the bohemians have given way to cool-seekers with bigger bank accounts. Now, this neighborhood is among the most expensive places to live in the city. That hasn't cost the neighborhood much of its sophistication, though. Nightlife in Tribeca remains busy but refined, attracting a cosmopolitan crowd with an appreciation for the finer things in life.
Learn more about Tribeca





























































































































































