$3,995,000
For Sale
- ft²
8 rooms
4 beds
3 baths
Co-op
- Lenox Hill
Resale
This home has been saved by 204 users.
Listing by Sotheby's International Realty, Corporate Broker, 650 Madison Avenue, New York, NY 10022
Maintenance fees
$8,629/mo
Estimated payment
$21,138/mo
Legal disclaimerAll calculations are estimates provided by StreetEasy for informational purposes only. Actual amounts or financing terms may vary. Please contact your mortgage provider for specifics.Taxes
Included in maintenance fees
Tax abatement
No info
About
Sellerâs agent
description
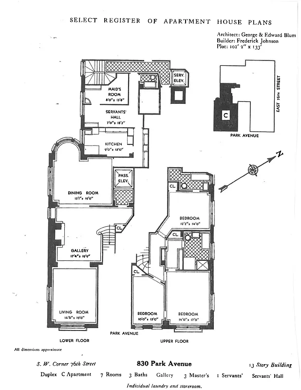
Perfectly situated on Park Avenue and East 76th Street, this crisp, classic and mostly original 9 into 8 room Duplex cooperative apartment is available for the first time in decades. The sprawling apartment offers an impressive suite of entertaining rooms, a large eat in Kitchen, as well as the flexibility of four Bedrooms.
Distinguished by large windows, multiple corner exposures and a unique garden facing semi-circular bay window; the apartment is an absolute delight.
Policies
Pets allowed
Cats and dogs allowed
Pied-a-terre allowed
Home features
Dishwasher
Fireplace
Wood
Hardwood floors
Washer/dryer
Building amenities
Services and facilities
Doorman
Full-time
Elevator
Live-in super
Wellness and recreation
No info on wellness and recreation
Shared outdoor space
No info on shared outdoor space
About the building
830 Park Avenue
830 Park Avenue, New York, NY 10021
38 units
13 stories
1913 built
For sale
1 available units for saleFor rent
0 available units for rentDocuments and permits
View documents and permitsProperty history
- Price Change: â $290,000 (-6.8%) on 1/28/26
- Days on market: 77 daysThis is the number of days the listing has been on StreetEasy.
| Date | Price | Event |
|---|---|---|
1/28/2026 | $3,995,000 | Price decreased by 7% |
12/4/2025 | $4,285,000 | Listed by Sotheby's International Realty |
Sign in to take a closer look at how this home compares to similar homes.
Explore Lenox Hill
Transit
| Location | Distance |
|---|---|
6at 77th St | 0.12 miles |
Qat 72nd St | 0.39 miles |
6at 68th StâHunter College | 0.4 miles |
456at 86th St | 0.53 miles |
Qat 86th St | 0.53 miles |
















































































































































