- ft²
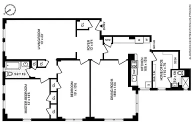
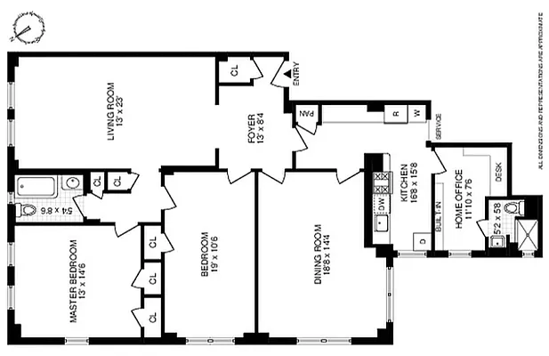
6 rooms
3 beds
2 baths
Co-op
- Upper West Side
Resale
recorded sale
Sold on 9/29/2025
Verified by closing records
Last listed for $1,600,000
Seller's agent
This home has been saved by 100 users.
Listing by Corcoran, Limited Liability Broker, 221 Columbus Avenue, New York, NY 10023
Maintenance fees
$3,011/mo
Estimated payment
Taxes
Included in maintenance fees
Tax abatement
No info
About
Seller’s agent
description
IN CONTRACT. Located in the heart of prime Upper West Side, on the 12th floor of 875 West End Avenue, apartment 12E presents a rare opportunity to own a Rosario Candela high floor classic six apartment with beautiful views of the river and sky. Enormous rooms, brilliant sunlight, Hudson river views as well George Washington Bridge views, and the pin-drop quiet of the most solid construction.
Policies
Pets allowed
Cats and dogs allowed
Home features
Dishwasher
Hardwood floors
View
Skyline, Water
Washer/dryer
Building amenities
Services and facilities
Bike room
Doorman
Full-time
Elevator
Laundry in building
Live-in super
Storage space
Locker/cage
Wellness and recreation
Children's playroom
Gym
Shared outdoor space
No info on shared outdoor space
About the building
875 West End Avenue
875 West End Avenue, New York, NY 10025
103 units
15 stories
1924 built
For sale
0 available units for saleFor rent
0 available units for rentDocuments and permits
View documents and permitsProperty history
- Price Change: No changes
- Days on market: 66 daysThis is the number of days the listing has been on StreetEasy.
| Date | Price | Event |
|---|---|---|
9/29/2025 | $1,635,000 | Sold by Corcoran |
7/8/2025 | $1,600,000 | In contract |
5/3/2025 | $1,600,000 | Listed by Corcoran |
6/23/2020 | $1,885,000 | |
3/24/2020 | $1,885,000 |
Past listing photos
Sign in to take a closer look at how this home compares to similar homes.
Explore Upper West Side
Transit
| Location | Distance |
|---|---|
1at 103rd St | under 500 feet |
1at Cathedral Parkway–110th St | 0.35 miles |
123at 96th St | 0.38 miles |
BCat 103rd St | 0.52 miles |
BCat 96th St | 0.59 miles |
About Upper West Side
Rental prices shown are base rent before any fees. Visit listings for cost and fees breakdown.
SalesMedian asking price
3 beds
$2.77M
RentalsMedian asking base rent
3 beds
$9,300
Sandwiched between two beautiful parks, the Upper West Side is one of the greenest spots in Manhattan. For that reason, it is a perennial favorite. The Upper West Side is relaxed, but never dull. There are plenty of low-key bars and restaurants to frequent along Amsterdam Avenue, and Broadway is an always-bustling commercial center. The wide, tree-lined streets still boast many mom-and-pop stores. Less posh than the Upper East Side, it is more easily accessible by public transportation, and real estate prices are just as, if not more, expensive.
Learn more about Upper West Side







































































































































































