$5,500
For Rent
Base rent only. For total monthly price and additional fees, see .
1,200 ft²
$55 per ft²
4 rooms
2 beds
2 baths
Rental unit
- Fulton/Seaport
Under NYC law, you can't be charged a broker fee if you didn't hire a broker.
Listed By
This home has been saved by 10 users.
Listing by Compass, Corporate Broker, 110 5th Avenue, New York, NY 10011
Available
4/1/2026
Days on market
0 days
Last price change
No changes
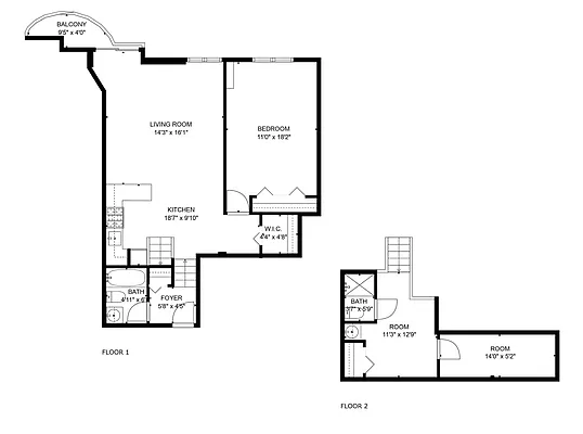
About
Key Features:
• Expansive duplex layout spanning two floors, providing privacy, functionality, and impressive space.
• Two well-proportioned bedrooms, both offering comfort and versatility.
• Two full bathrooms with clean, modern finishes.
• Private balcony — an ideal spot to relax, enjoy fresh air, or unwind after a long day.
• Primary bedroom with walk-in closet, offering abundant storage.
Policies
Guarantors accepted
Pets allowed
Pied-a-terre allowed
Smoke-free
Sublets allowed
Home features
Hardwood floors
Private outdoor space
Balcony, Roof deck, Terrace
View
City
Building amenities
Services and facilities
Concierge
Doorman
Full-time
Elevator
Laundry in building
Live-in super
Package room
Wellness and recreation
No info on wellness and recreation
Shared outdoor space
No info on shared outdoor space
About the building
88 Fulton
88 Fulton Street, New York, NY 10038
187 units
8 stories
1900 built
Property history
Prices shown are base rent only. For total monthly price and additional fees, see .
| Date | Base rent | Event |
|---|---|---|
3/14/2026 | $5,500 | Listed by Compass |
3/18/2025 | $5,000 | |
3/10/2025 | $5,000 | |
4/27/2019 | $3,395 | |
4/27/2019 | $3,395 | Price decreased by 3% |
Past listing photos
Sign in to take a closer look at how this home compares to similar homes.
Explore Fulton/Seaport
Transit
| Location | Distance |
|---|---|
ACJZ2345at Fulton St | under 500 feet |
23at Wall St | 0.18 miles |
JZ456at Brooklyn Bridge–City Hall | 0.21 miles |
JZat Broad St | 0.21 miles |
AC23at Park Place | 0.28 miles |
Similar homes
Prices shown are base rent only and don't include any fees. Visit each listing to see a complete cost breakdown.
Similar Homes looks at ad spend and other factors like location, price, and number of beds and baths.




























































































































