$27,000
For Rent
Base rent only. For total monthly price and additional fees, see .
Rented 2/23/2026
- ft²
12 rooms
5 beds
3+ baths
Three-family home
- Park Slope
Under NYC law, you can't be charged a broker fee if you didn't hire a broker.
Listed By
This home has been saved by 33 users.
Listing by Compass, Corporate Broker, 110 Fifth Avenue, New York, NY 10011
Unavailable
Rented on 2/23/2026
Days on market
14 days
Last price change
No changes
About
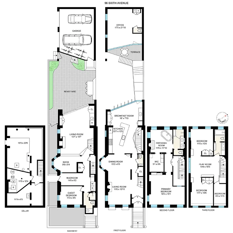
Historic townhouse grandeur meets modern Brooklyn glamour in this extraordinary, gut-renovated Park Slope townhouse featuring a private yard and an ultra-rare two-car garage. Positioned at the corner of Prospect Place and Sixth Avenue, this spectacular compound offers generous living space on three floors plus five bedrooms, three full bathrooms, two half bathrooms and a separate studio ideal as a private home office.
Policies
Sorry, policy info isn’t available right now. Check back later.
Home features
Central air
Dishwasher
Fireplace
Gas, Wood
Hardwood floors
Private outdoor space
Balcony, Garden, Terrace
Washer/dryer
Building amenities
Services and facilities
Parking
Garage
Wellness and recreation
No info on wellness and recreation
Shared outdoor space
Courtyard
About the building
96 6th Avenue
96 6th Avenue, Brooklyn, NY 11217
3 units
3 stories
1920 built
Property history
Prices shown are base rent only. For total monthly price and additional fees, see .
| Date | Base rent | Event |
|---|---|---|
2/23/2026 | $27,000 | Rented by Compass |
2/9/2026 | $27,000 | Listed by Compass |
Past listing photos
Sign in to take a closer look at how this home compares to similar homes.
Explore Park Slope
Transit
| Location | Distance |
|---|---|
23at Bergen St | under 500 feet |
BQat 7th Av | 0.21 miles |
LIRRat Atlantic Terminal | 0.28 miles |
BDNQR2345at Atlantic Av–Barclays Ctr | 0.33 miles |
23at Grand Army Plaza | 0.38 miles |
About Park Slope
Rental prices shown are base rent before any fees. Visit listings for cost and fees breakdown.
SalesMedian asking price
5 beds
$3.75M
RentalsMedian asking base rent
5 beds
$10,750
Park Slope has a tranquil, easygoing vibe and can almost feel suburban. Strollers and children of all ages are a constant presence on sidewalks, as are shoppers patronizing local boutiques and dog walkers heading up to the park. Residents are Brooklynites through and through and tend to be socially conscious, artistically minded, and committed to their community. At night, a casual restaurant scene comes alive. For anyone looking for a night out, there are plenty of beer gardens and wine bars to patronize, especially in the South Slope, but don't go looking for dance clubs.
Learn more about Park SlopeSimilar homes
Prices shown are base rent only and don't include any fees. Visit each listing to see a complete cost breakdown.
Similar Homes looks at ad spend and other factors like location, price, and number of beds and baths.










































































































































