$4,200
For Rent
Base rent only. For total monthly price and additional fees, see .
Rented 5/29/2024
- ft²
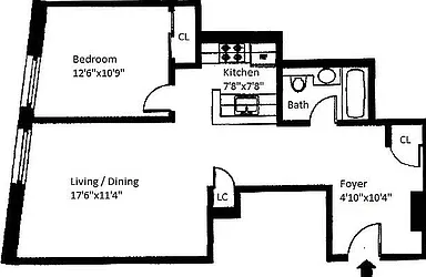
3 rooms
1 bed
1 bath
Condo
- Fulton/Seaport
Under NYC law, you can't be charged a broker fee if you didn't hire a broker.
Listed By
This home has been saved by 23 users.
Listing by Oxford Property Group, Limited Liability Broker, 401 New Karner Road, Albany, NY 12205
Unavailable
Rented on 5/29/2024
Days on market
15 days
Last price change
No changes
About
Welcome to apartment 9F, a rarely available gem nestled in the heart of downtown Manhattan. This bright and sunny luxury one bedroom, one bathroom condominium boasts stunning views of City Hall Park, offering residents the best of both FiDi and Tribeca.
Step inside to discover an array of features including hardwood floors, a spacious living room flooded with natural light from oversized windows, and high ceilings creating an airy ambiance.
Policies
Pets allowed
Cats and dogs allowed
Home features
Central air
Dishwasher
Hardwood floors
View
City, Skyline
Building amenities
Services and facilities
Concierge
Doorman
Full-time
Elevator
Live-in super
Parking
Wellness and recreation
Gym
Shared outdoor space
Roof deck
About the building
American Tract Society Building
150 Nassau Street, New York, NY 10038
125 units
23 stories
1900 built
Property history
Prices shown are base rent only. For total monthly price and additional fees, see .
| Date | Base rent | Event |
|---|---|---|
5/29/2024 | $4,200 | Rented by Oxford Property Group |
4/22/2024 | $4,200 | In contract |
4/7/2024 | $4,200 | Listed by Oxford Property Group |
7/20/2019 | $3,500 | |
4/20/2019 | $3,500 |
Past listing photos
Sign in to take a closer look at how this home compares to similar homes.
Explore Fulton/Seaport
Transit
| Location | Distance |
|---|---|
JZ456at Brooklyn BridgeâCity Hall | under 500 feet |
ACJZ2345at Fulton St | 0.13 miles |
JZ456at Chambers St | 0.13 miles |
RWat City Hall | 0.13 miles |
AC23at Park Place | 0.13 miles |
Similar homes
Prices shown are base rent only and don't include any fees. Visit each listing to see a complete cost breakdown.
Similar Homes looks at ad spend and other factors like location, price, and number of beds and baths.

































































































































































