$4,549
For Rent
Base rent only. For total monthly price and additional fees, see .
Rented 9/8/2023
771 ft²
$70 per ft²
3 rooms
1 bed
1 bath
Rental unit
- Midtown
Under NYC law, you can't be charged a broker fee if you didn't hire a broker.
Listed By
AvalonBay Communities (Manual)
This home has been saved by 9 users.
Listing by AvalonBay Communities (Manual)
Unavailable
Rented on 9/8/2023
Days on market
23 days
Last price change
↑ $152 (+3.2%) on 9/8/23
About
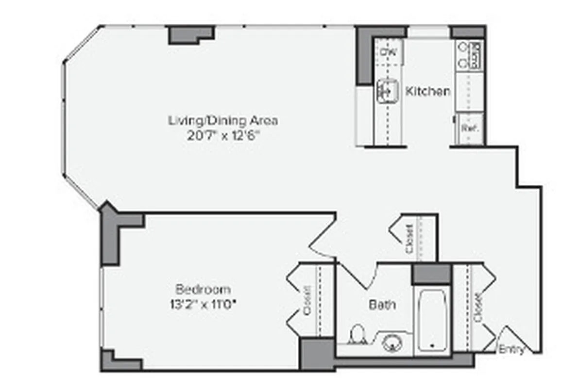
Massive northeast-facing 1-bedroom apartment home, located in Midtown Manhattan. This 1-bedroom features hardwood flooring, galley-style, windowed kitchen with white cabinetry, white appliances, and laminate countertops, and Botticino marble bathroom.
Avalon Midtown West offers a state of the art fitness center, heated indoor swimming pool, outdoor sundeck, expansive community room with televisions and Wi-Fi access, as well as on-site laundry and parking.
Policies
Pets allowed
Home features
Dishwasher
Hardwood floors
View
City
Building amenities
Services and facilities
Concierge
Doorman
Full-time
Elevator
Laundry in building
Package room
Parking
Garage
Wheelchair access
Wellness and recreation
Gym
Swimming pool
Shared outdoor space
Deck
About the building
Avalon Midtown West
250 West 50th Street, New York, NY 10019
550 units
40 stories
1998 built
Property history
Prices shown are base rent only. For total monthly price and additional fees, see .
| Date | Base rent | Event |
|---|---|---|
9/8/2023 | $4,549 | Rented by AvalonBay Communities (Manual) |
9/8/2023 | $4,549 | Price increased by 3% |
8/29/2023 | $4,397 | Price decreased by 2% |
8/16/2023 | $4,487 | Listed by AvalonBay Communities (Manual) |
5/14/2019 | $4,222 |
Past listing photos
Sign in to take a closer look at how this home compares to similar homes.
Explore Midtown
Transit
| Location | Distance |
|---|---|
CEat 50th St | under 500 feet |
1at 50th St | under 500 feet |
NRWat 49th St | 0.14 miles |
BDEat 7th Av | 0.21 miles |
ACENQRWS1237at Times Square–42nd St | 0.25 miles |
About Midtown
Rental prices shown are base rent before any fees. Visit listings for cost and fees breakdown.
SalesMedian asking price
1 bed
$1.7M
RentalsMedian asking base rent
1 bed
$4,810
If you're looking for a neighborhood with tree-lined streets and quaint coffee shops, Midtown isn't it. The neighborhood is more of a center for business than a residential community, but it puts everything close at hand for those who dwell here. Skyscrapers rise above congested streets, tourists flock to Broadway shows and Times Square, and thousands of commuters pass through Grand Central Terminal, Pennsylvania Station, and the Port Authority Bus Terminal every day.
The real estate options in Midtown can be diverse; surprisingly affordable apartments can be found alongside some of the city's most expensive properties. The headquarters of many global corporations line Sixth Avenue, while Fifth Avenue is an upscale retail destination with stores from some of the world's best-known brands.
Similar homes
Prices shown are base rent only and don't include any fees. Visit each listing to see a complete cost breakdown.
Similar Homes looks at ad spend and other factors like location, price, and number of beds and baths.







































































































































































