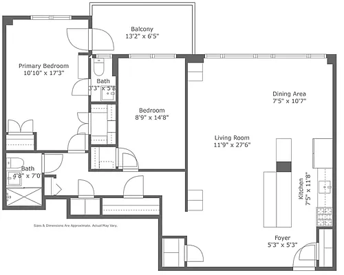
1,200 ft²
$441 per ft²
5 rooms
2 beds
1.5 baths
Co-op
- Riverdale
Sponsor unit
Sponsor unitA unit being sold for the first time. It’s typically owned by the building. For condos, this is often the developer. For co-ops, this is often the building’s original owner before it went co-op.
recorded sale
Sold on 7/1/2025
Verified by closing records
Last listed for $499,900
Seller's agent
This home has been saved by 32 users.
Listing by Re/Max In The City, Corporate Broker, 5776 Mosholu Avenue, Riverdale, NY 10471
Maintenance fees
$1,463/mo
Estimated payment
$4,307/mo
Legal disclaimerAll calculations are estimates provided by StreetEasy for informational purposes only. Actual amounts or financing terms may vary. Please contact your mortgage provider for specifics.Taxes
Included in maintenance fees
Tax abatement
No info
About
Seller’s agent
Buyer’s agent
description
"SPONSOR APARTMENT NO BOARD APPROVAL " Large 2 bedrooms and 1.5 Bathrooms at Briar Oaks with an amazing scenic views of the palisades, NYC SKYLINE and the Hudson River views from all rooms. Come prepare to see tastefully renovated apartment in a luxury amenities building in central Riverdale. Monthly maintenance includes all utilities the balcony with a view is a plus.
Policies
Pets allowed
Home features
Hardwood floors
Private outdoor space
Terrace
View
Water
Building amenities
Services and facilities
Bike room
Doorman
Full-time
Elevator
Laundry in building
Live-in super
Parking
Garage
Wellness and recreation
Children's playroom
Gym
Shared outdoor space
No info on shared outdoor space
About the building
Briar Oaks
4555 Henry Hudson Parkway West, Bronx, NY 10471
159 units
13 stories
1953 built
For sale
2 available units for saleFor rent
0 available units for rentDocuments and permits
View documents and permitsProperty history
- Price Change: ↑ $60,000 (+10.7%) on 2/28/25
- Days on market: 281 daysThis is the number of days the listing has been on StreetEasy.
| Date | Price | Event |
|---|---|---|
7/1/2025 | $530,000 | Sold by Re/Max In The City |
4/24/2025 | $499,900 | In contract |
2/28/2025 | $499,900 | Price increased by 14% |
8/22/2024 | $439,900 | Price decreased by 2% |
7/17/2024 | $449,900 | Listed by Re/Max In The City |
Past listing photos
Sign in to take a closer look at how this home compares to similar homes.
Explore Riverdale
Transit
| Location | Distance |
|---|---|
1at Van Cortlandt Park–242nd St | 0.59 miles |
1at 238th St | 0.68 miles |
1at 231st St | 0.94 miles |
1at Marble Hill–225th St | 1.25 miles |
4at Mosholu Parkway | 1.54 miles |
About Riverdale
Rental prices shown are base rent before any fees. Visit listings for cost and fees breakdown.
SalesMedian asking price
2 beds
$397K
RentalsMedian asking base rent
2 beds
$3,500
Riverdale was once a summer retreat for wealthy New Yorkers, who built large estates and Tudor-style mansions along the cliffs overlooking the Hudson River and the Palisades. Many of these properties still remain, which lends an upscale, polished atmosphere to the neighborhood's windy, tree-lined streets. Although certain pockets recall the tonier Westchester towns to the north, Riverdale is far more diverse. In addition to large single-family homes, Riverdale also features many co-op complexes, which offer more affordable housing options but the same easy, bucolic pace of life.
Learn more about Riverdale





































































































































