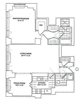
1,108 ft²
$898 per ft²
4 rooms
1 bed
1.5 baths
Condo
- Lenox Hill
reported sale
Sold on 11/11/2014
Not yet verified by closing records
Seller's agent
Douglas Elliman
This home has been saved by 1 user.
Listing by Douglas Elliman, Limited Liability Broker | Brokerage Listing ID: 630082
Common charges
$656/mo
Estimated payment
$5,919/mo
Legal disclaimerAll calculations are estimates provided by StreetEasy for informational purposes only. Actual amounts or financing terms may vary. Please contact your mortgage provider for specifics.Taxes
$232/mo
Tax abatement
No info
About
Seller’s agent
description
Prestigious white glove condominium designed by Costas Kundylus and David Rockwell. This very large one bedroom easily converted to two with 1.5 marble baths is in great location and has open views. The state-of-the-art kitchen features granite counter tops, wood cabinets, marble floor and stainless steel appliances.
Policies
Pets allowed
Cats and dogs allowed
Home features
Private outdoor space
Garden
Building amenities
Services and facilities
Concierge
Doorman
Full-time
Elevator
Laundry in building
Live-in super
Parking
Garage
Storage space
Wellness and recreation
Children's playroom
Gym
Shared outdoor space
Deck
Roof deck
About the building
Bridge Tower Place
401 East 60th Street, New York, NY 10022
218 units
38 stories
1999 built
For sale
11 available units for saleFor rent
3 available units for rentDocuments and permits
View documents and permitsProperty history
- Price Change: No changes
- Days on market: 3751 daysThis is the number of days the listing has been on StreetEasy.
| Date | Price | Event |
|---|---|---|
11/12/2014 | $995,000 | Sold by Douglas Elliman |
11/11/2014 | $995,000 | No longer available |
8/4/2004 | $995,000 | Listed by Douglas Elliman |
Past listing photos
Sign in to take a closer look at how this home compares to similar homes.
Explore Lenox Hill
Transit
| Location | Distance |
|---|---|
NRW456at Lexington Av/59th St | 0.29 miles |
FQat Lexington Av/63rd St | 0.42 miles |
Qat 72nd St | 0.46 miles |
EM6at Lexington Av–53rd St | 0.46 miles |
6at 68th St–Hunter College | 0.54 miles |


















































































































