$5,200
For Rent
Base rent only. For total monthly price and additional fees, see .
Delisted 7/9/2025
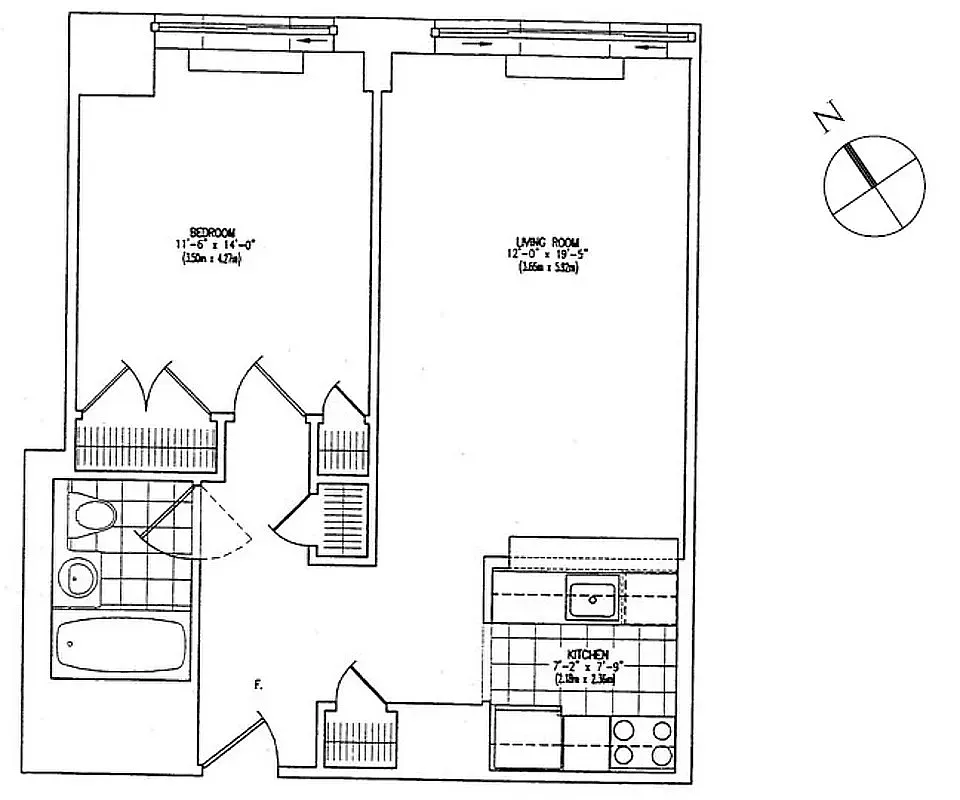
733 ft²
$85 per ft²
3 rooms
1 bed
1 bath
Condo
- Lenox Hill
Under NYC law, you can't be charged a broker fee if you didn't hire a broker.
Listed By
This home has been saved by 15 users.
Listing by Douglas Elliman, Limited Liability Broker, 590 Madison Avenue, New York, NY 10022 | Brokerage Listing ID: 0491203187
Unavailable
Delisted on 7/9/2025
Days on market
11 days
Last price change
No changes
About
Take a look at this bright and spacious 1 bedroom located in a full service, amenity driven condominium. The apartment features windowed kitchen with stainless steel appliances, granite countertops, ample storage and cooking space. The living and dining room is situated with floor-to-ceiling windows which brings a lot of natural light. There are hardwood floors throughout the apartment.
Policies
Pets allowed
Cats and dogs allowed
Home features
Dishwasher
Building amenities
Services and facilities
Concierge
Doorman
Full-time
Elevator
Laundry in building
Live-in super
Parking
Garage
Wellness and recreation
Children's playroom
Gym
Shared outdoor space
Deck
Roof deck
About the building
Bridge Tower Place
401 East 60th Street, New York, NY 10022
218 units
38 stories
1999 built
Property history
Prices shown are base rent only. For total monthly price and additional fees, see .
| Date | Base rent | Event |
|---|---|---|
7/9/2025 | $5,200 | Delisted by Douglas Elliman |
6/18/2025 | $5,200 | In contract |
6/7/2025 | $5,200 | Listed by Douglas Elliman |
Sign in to take a closer look at how this home compares to similar homes.
Explore Lenox Hill
Transit
| Location | Distance |
|---|---|
NRW456at Lexington Av/59th St | 0.29 miles |
FQat Lexington Av/63rd St | 0.42 miles |
Qat 72nd St | 0.46 miles |
EM6at Lexington Av–53rd St | 0.46 miles |
6at 68th St–Hunter College | 0.54 miles |
Similar homes
Prices shown are base rent only and don't include any fees. Visit each listing to see a complete cost breakdown.
Similar Homes looks at ad spend and other factors like location, price, and number of beds and baths.






























































































































