$2,850
For Rent
Base rent only. For total monthly price and additional fees, see .
Rented 6/5/2023
789 ft²
$43 per ft²
1 room
1 bed
1 bath
Condo
- Flatbush
Under NYC law, you can't be charged a broker fee if you didn't hire a broker.
Listed By
This home has been saved by 80 users.
Listing by Prevu Real Estate, LLC, Limited Liability Broker, 45 Main Street, Brooklyn, NY 11201
Unavailable
Rented on 6/5/2023
Days on market
14 days
Last price change
No changes
About
IN CONTRACT. No longer taking applications.
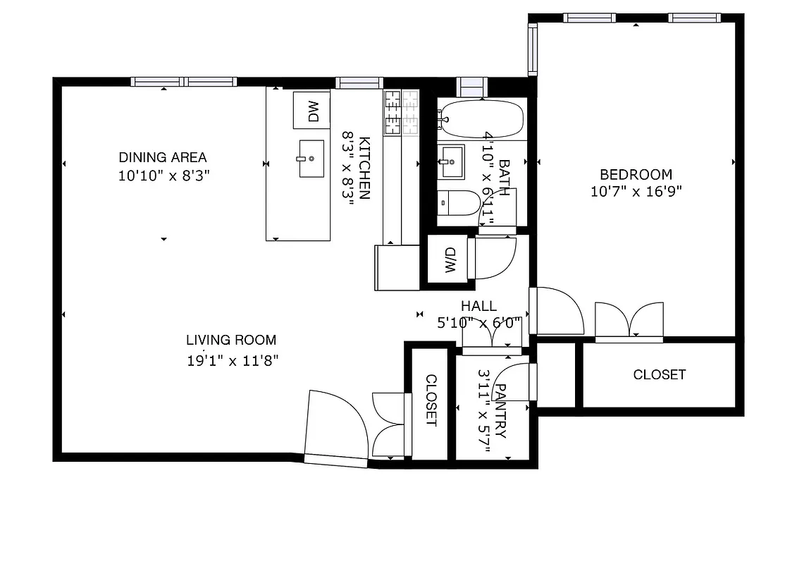
Redefine apartment living with a high utility floor plan that feels like a true home. 4C features a generous living room, a designated dining area that can easily be converted to a home office, and an abundance of storage: 3 huge closets with thoughtful built-ins and an enormous walk-in pantry replete with useful shelving. The bedroom easily fits a king size bed and more.
Policies
Pets allowed
Home features
Dishwasher
Washer/dryer
Building amenities
Services and facilities
Bike room
Elevator
Laundry in building
Package room
Parking
Garage
Wellness and recreation
Gym
Shared outdoor space
Roof deck
About the building
Brooklyn Flats
61 Martense Street, Brooklyn, NY 11226
60 units
6 stories
2018 built
Property history
Prices shown are base rent only. For total monthly price and additional fees, see .
| Date | Base rent | Event |
|---|---|---|
6/5/2023 | $2,850 | Rented by Prevu Real Estate, LLC |
6/2/2023 | $2,850 | In contract |
5/19/2023 | $2,850 | Listed by Prevu Real Estate, LLC |
6/7/2022 | $2,600 | |
6/1/2022 | $2,600 |
Past listing photos
Sign in to take a closer look at how this home compares to similar homes.
Explore Flatbush
Transit
| Location | Distance |
|---|---|
BQat Church Av | 0.3 miles |
BQat Parkside Av | 0.34 miles |
25at Church Av | 0.38 miles |
25at Winthrop St | 0.47 miles |
25at Beverly Rd | 0.61 miles |
Similar homes
Prices shown are base rent only and don't include any fees. Visit each listing to see a complete cost breakdown.
Similar Homes looks at ad spend and other factors like location, price, and number of beds and baths.












































































































































