714 ft²
$1,127 per ft²
5 rooms
1 bed
2 baths
Co-op
- Midtown South
Resale
recorded sale
Sold on 12/23/2020
Verified by closing records
Last listed for $899,000
Seller's agents
This home has been saved by 259 users.
Listing by Compass, Corporate Broker, 360 Madison Avenue, New York, NY 10017
Maintenance fees
$1,793/mo
Estimated payment
$6,082/mo
Legal disclaimerAll calculations are estimates provided by StreetEasy for informational purposes only. Actual amounts or financing terms may vary. Please contact your mortgage provider for specifics.Taxes
Included in maintenance fees
Tax abatement
No info
About
Seller’s agent
Buyer’s agent
description
OPEN HOUSE IS BY APPOINTMENT ONLY, YOU MUST SCHEDULE AN APPOINTMENT
Enjoy Bird's Eye Views of Bryant Park.
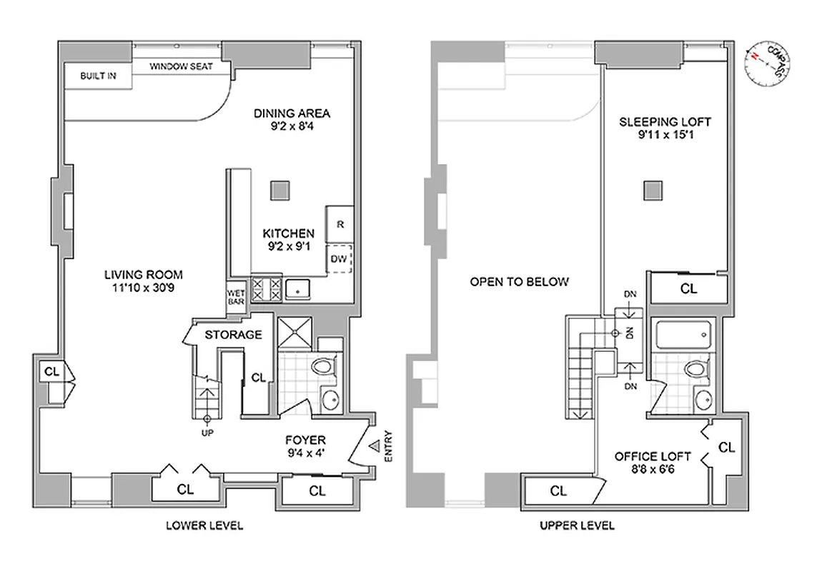
Welcome to unit 10D at historic Bryant Park Place, a rarely available home perched high above Bryant Park with spectacular views of the park and adjacent flagship building of the New York Public Library, and the Midtown Manhattan Skyline. The unique duplex loft one bedroom, plus home office or second bedroom, has two full baths, one on each level.
Policies
Gifts allowed
Guarantors accepted
Parents buying allowed
Pets allowed
Cats and dogs allowed
Pied-a-terre allowed
Sublets allowed
Home features
Dishwasher
Hardwood floors
View
City, Park
Building amenities
Services and facilities
Bike room
Doorman
Full-time
Elevator
Laundry in building
Live-in super
Wellness and recreation
No info on wellness and recreation
Shared outdoor space
No info on shared outdoor space
About the building
Bryant Park Place
32 West 40th Street, New York, NY 10018
62 units
12 stories
1907 built
For sale
0 available units for saleFor rent
0 available units for rentDocuments and permits
View documents and permitsProperty history
- Price Change: No changes
- Days on market: 63 daysThis is the number of days the listing has been on StreetEasy.
| Date | Price | Event |
|---|---|---|
12/23/2020 | $805,000 | Sold by Compass |
9/8/2020 | $899,000 | In contract |
7/7/2020 | $899,000 | Listed by Compass |
Past listing photos
Sign in to take a closer look at how this home compares to similar homes.
Explore Midtown South
Transit
| Location | Distance |
|---|---|
BDFM7at 42nd St | under 500 feet |
BDFM7at 5th Av | 0.13 miles |
ACENQRWS1237at Times Square–42nd St | 0.2 miles |
S4567at Grand Central–42nd St | 0.24 miles |
BDFMNQRWat 34th St–Herald Sq | 0.24 miles |




































































































































