$5,595
For Rent
Base rent only. For total monthly price and additional fees, see .
No longer available 9/25/2025
- ft²
4 rooms
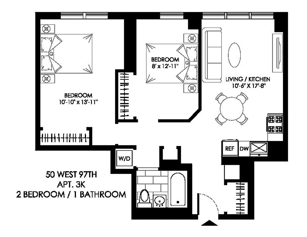
2 beds
1 bath
Rental unit
- Upper West Side
Under NYC law, you can't be charged a broker fee if you didn't hire a broker.
Listed By
Stellar Management
This home has been saved by 8 users.
Listing by Stellar Management, Corporate Broker | Brokerage Listing ID: 38068
Unavailable
No longer available on 9/25/2025
Days on market
21 days
Last price change
↓ $455 (-7.5%) on 9/5/25
About
Welcome to 50 West 97th Street, a place you can call HOME. A Luxury doorman, elevator building on a quiet, tree-lined street, steps from Central Park!
This gut-renovated unit features:
- Open kitchen with stainless steel appliances and granite countertops.
- In-unit Bosch washer/ dryer.
- Hardwood floors.
- Elegantly subway-tiled bathroom with brushed nickel fixtures.
- Ample closet space.
Policies
Pets allowed
Home features
No info on home features
Building amenities
Services and facilities
Doorman
Elevator
Laundry in building
Live-in super
Parking
Wellness and recreation
No info on wellness and recreation
Shared outdoor space
No info on shared outdoor space
About the building
Central Park Gardens
50 West 97th Street, New York, NY 10025
243 units
14 stories
1969 built
Property history
Prices shown are base rent only. For total monthly price and additional fees, see .
| Date | Base rent | Event |
|---|---|---|
9/25/2025 | $5,595 | No longer available |
9/10/2025 | $5,595 | Listed by Stellar Management |
9/5/2025 | $5,595 | Price decreased by 8% |
9/4/2025 | $6,050 | No longer available |
5/29/2021 | $4,275 |
Past listing photos
Sign in to take a closer look at how this home compares to similar homes.
Explore Upper West Side
Transit
| Location | Distance |
|---|---|
BCat 96th St | under 500 feet |
BCat 103rd St | 0.33 miles |
123at 96th St | 0.34 miles |
BCat 86th St | 0.44 miles |
1at 103rd St | 0.46 miles |
About Upper West Side
Rental prices shown are base rent before any fees. Visit listings for cost and fees breakdown.
SalesMedian asking price
2 beds
$1.66M
RentalsMedian asking base rent
2 beds
$6,220
Sandwiched between two beautiful parks, the Upper West Side is one of the greenest spots in Manhattan. For that reason, it is a perennial favorite. The Upper West Side is relaxed, but never dull. There are plenty of low-key bars and restaurants to frequent along Amsterdam Avenue, and Broadway is an always-bustling commercial center. The wide, tree-lined streets still boast many mom-and-pop stores. Less posh than the Upper East Side, it is more easily accessible by public transportation, and real estate prices are just as, if not more, expensive.
Learn more about Upper West SideSimilar homes
Prices shown are base rent only and don't include any fees. Visit each listing to see a complete cost breakdown.
Similar Homes looks at ad spend and other factors like location, price, and number of beds and baths.




































































































