View this home virtually
$5,500
For Rent
Base rent only. For total monthly price and additional fees, see .
In contract 1/29/2026
700 ft²
$94 per ft²
4 rooms
1 bed
1 bath
Condo
- Hell's Kitchen
Under NYC law, you can't be charged a broker fee if you didn't hire a broker.
Listed By
This home has been saved by 44 users.
Listing by Kimiko Matsumoto, LREB, 245 Avenue C, New York, NY 10009
Available
3/1/2026
Days on market
10 days
Last price change
↑ $400 (+6.8%) on 1/29/26
About
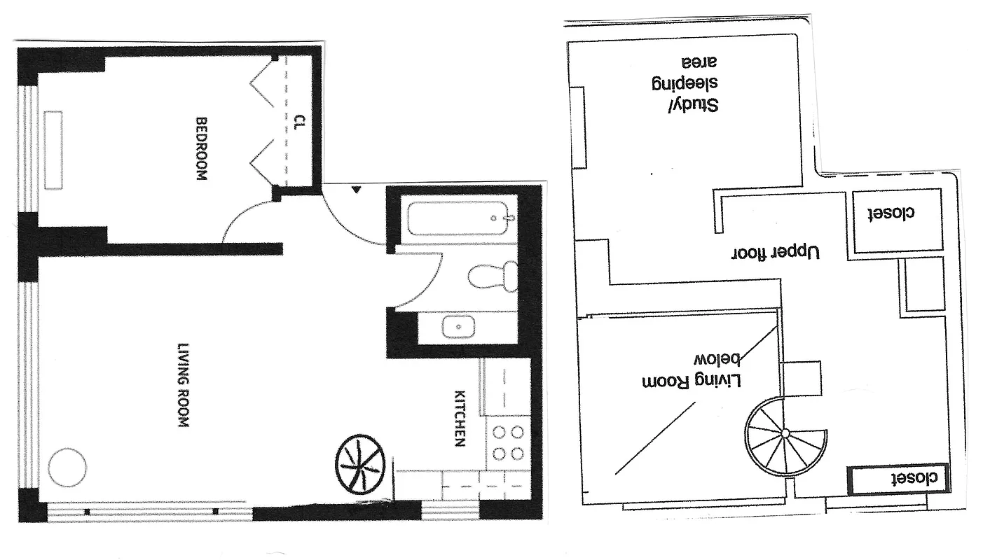
Unique layout featuring a One-bedroom plus a duplex loft above the living room, creating an airy, versatile space with abundant natural light at Central Park Place Condominium
Available: after March 1, 2026
Rent: 5,100/ month
Property Highlights:
• One-bedroom residence with an additional loft/study area
• Dramatic 16-foot ceilings in the bright corner living room
• Expansive East & South-facing windows...
Policies
Sorry, policy info isn’t available right now. Check back later.
Home features
Central air
Dishwasher
Hardwood floors
View
City
Building amenities
Services and facilities
Bike room
Concierge
Doorman
Full-time
Elevator
Laundry in building
Live-in super
Storage space
Cold storage
Wellness and recreation
Gym
Swimming pool
Shared outdoor space
Deck
Roof deck
About the building
Central Park Place
301 West 57th Street, New York, NY 10019
296 units
56 stories
1987 built
Property history
Prices shown are base rent only. For total monthly price and additional fees, see .
| Date | Base rent | Event |
|---|---|---|
1/29/2026 | $5,500 | Price increased by 8% |
1/29/2026 | $5,100 | In contract |
1/19/2026 | $5,100 | Listed by Kimiko Matsumoto, LREB |
5/2/2022 | $4,300 | |
4/26/2022 | $4,300 |
Past listing photos
Sign in to take a closer look at how this home compares to similar homes.
Explore Hell's Kitchen
Transit
| Location | Distance |
|---|---|
ABCD1at 59th St–Columbus Circle | under 500 feet |
NRWat 57th St–7th Av | 0.19 miles |
BDEat 7th Av | 0.27 miles |
Fat 57th St | 0.36 miles |
CEat 50th St | 0.37 miles |
Similar homes
Prices shown are base rent only and don't include any fees. Visit each listing to see a complete cost breakdown.
Similar Homes looks at ad spend and other factors like location, price, and number of beds and baths.






















































































































































































































