$4,900
For Rent
Base rent only. For total monthly price and additional fees, see .
Rented 1/18/2026
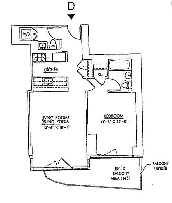
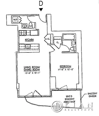
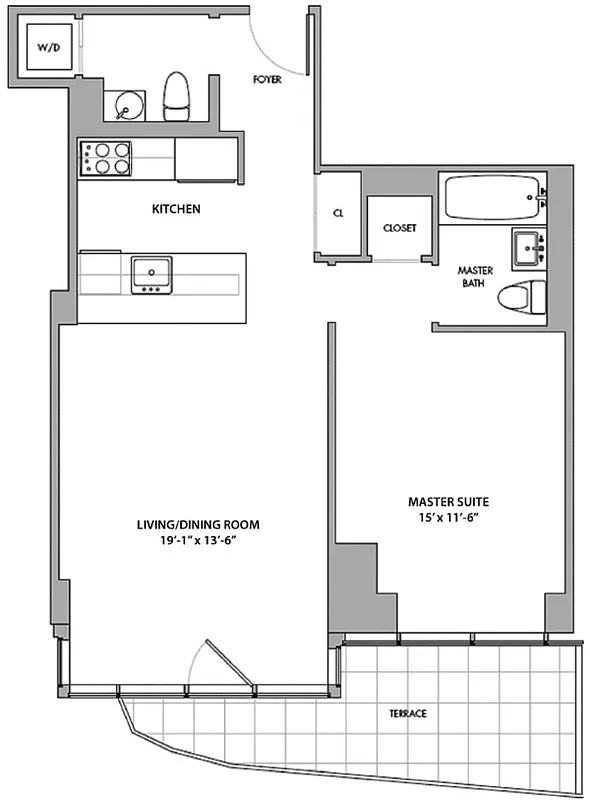
801 ft²
$73 per ft²
4 rooms
1 bed
1.5 baths
Condo
- Lincoln Square
Under NYC law, you can't be charged a broker fee if you didn't hire a broker.
Listed By
This home has been saved by 48 users.
Listing by HighRiseNY, Limited Liability Broker, 162-46 95th Street, Howard Beach, NY 11414
Unavailable
Rented on 1/18/2026
Days on market
2 days
Last price change
↑ $100 (+2.0%) on 1/17/26
About
Enjoy partial river views from your private south facing terrace where you can see the sun set! This oversized 1 bedroom/ 1.5 bathroom residence is located in one of the upper west side’s newest luxury condominiums. The apartment boasts floor-to-ceiling windows, an open floor plan with 9.5 foot ceilings, and beautiful wide plank oak flooring that extends throughout.
Policies
Pets allowed
Cats and dogs allowed
Home features
Central air
Dishwasher
Hardwood floors
Private outdoor space
Balcony
View
City, Skyline
Washer/dryer
Building amenities
Services and facilities
Bike room
Concierge
Doorman
Full-time
Elevator
Live-in super
Package room
Parking
Storage space
Cold storage
Wellness and recreation
Children's playroom
Gym
Media room
Swimming pool
Shared outdoor space
No info on shared outdoor space
About the building
Element
555 West 59th Street, New York, NY 10019
186 units
33 stories
2007 built
Property history
Prices shown are base rent only. For total monthly price and additional fees, see .
| Date | Base rent | Event |
|---|---|---|
1/18/2026 | $4,900 | Rented by HighRiseNY |
1/17/2026 | $4,900 | Price increased by 2% |
1/16/2026 | $4,800 | Listed by HighRiseNY |
9/15/2023 | $4,800 | |
9/5/2023 | $4,800 |
Past listing photos
Sign in to take a closer look at how this home compares to similar homes.
Explore Lincoln Square
Transit
| Location | Distance |
|---|---|
1at 66th St–Lincoln Center | 0.39 miles |
ABCD1at 59th St–Columbus Circle | 0.4 miles |
123at 72nd St | 0.62 miles |
NRWat 57th St–7th Av | 0.63 miles |
CEat 50th St | 0.65 miles |
About Lincoln Square
Rental prices shown are base rent before any fees. Visit listings for cost and fees breakdown.
SalesMedian asking price
1 bed
$975K
RentalsMedian asking base rent
1 bed
$5,497
Named after and defined by the Lincoln Center for the Performing Arts, Lincoln Square is home to the New York Philharmonic, the New York City Ballet and the Metropolitan Opera, among many other cultural institutions. The neighborhood blends the prewar architecture and and style of the Upper West Side with modern, tall residential buildings. Great subway access at Columbus Circle and proximity to Midtown make this neighborhood popular with those looking to be in the center of it all.
Learn more about Lincoln SquareSimilar homes
Prices shown are base rent only and don't include any fees. Visit each listing to see a complete cost breakdown.
Similar Homes looks at ad spend and other factors like location, price, and number of beds and baths.



















































































































































































