View this home virtually
$7,500
For Rent
Base rent only. For total monthly price and additional fees, see .
Rented 8/20/2021
- ft²
5 rooms
2 beds
2 baths
Rental unit
- Lenox Hill
Under NYC law, you can't be charged a broker fee if you didn't hire a broker.
Listed By
This home has been saved by 19 users.
Listing by (Legacy) Elegran, Limited Liability Broker
Unavailable
Rented on 8/20/2021
Days on market
10 days
Last price change
No changes
About
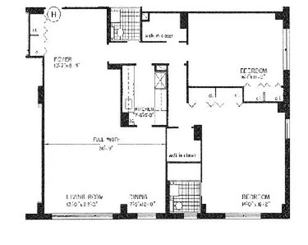
Closets, Dining Alcove and personal Washer and Dryer!
2 massive king size bedrooms and 2 full bathrooms. Incredible closet space throughout and 2 walk-in closets Large pass through kitchen that opens to a large and sunny dining alcove. Double pane windows and central air are just a few perks that make this enormous apartment a real home.
Friendly staff and 24 hr doorman, one of the best supers in the city resides in the building and always there to assist.
Policies
Sorry, policy info isn’t available right now. Check back later.
Home features
Central air
Dishwasher
Hardwood floors
View
City
Washer/dryer
Building amenities
Services and facilities
Doorman
Elevator
Laundry in building
Live-in super
Wheelchair access
Wellness and recreation
Gym
Shared outdoor space
No info on shared outdoor space
About the building
Empire House
200 East 71st Street, New York, NY 10021
190 units
20 stories
1961 built
Property history
Prices shown are base rent only. For total monthly price and additional fees, see .
| Date | Base rent | Event |
|---|---|---|
8/20/2021 | $7,500 | Rented by (Legacy) Elegran |
8/16/2021 | $7,500 | In contract |
8/6/2021 | $7,500 | Listed by (Legacy) Elegran |
12/26/2018 | $6,495 | |
12/20/2018 | $6,495 |
Past listing photos
Sign in to take a closer look at how this home compares to similar homes.
Explore Lenox Hill
Transit
| Location | Distance |
|---|---|
Qat 72nd St | 0.13 miles |
6at 68th St–Hunter College | 0.16 miles |
6at 77th St | 0.34 miles |
FQat Lexington Av/63rd St | 0.38 miles |
NRW456at Lexington Av/59th St | 0.51 miles |
Similar homes
Prices shown are base rent only and don't include any fees. Visit each listing to see a complete cost breakdown.
Similar Homes looks at ad spend and other factors like location, price, and number of beds and baths.














































































































