802 ft²
$1,215 per ft²
3 rooms
1 bed
1 bath
Condo
- Upper East Side
Resale
recorded sale
Sold on 6/26/2024
Verified by closing records
Last listed for $980,000
Seller's agent
This home has been saved by 46 users.
Listing by Brown Harris Stevens, Real Estate Principal Office, 1934 Broadway, New York, NY 10023
Common charges
$1,340/mo
Estimated payment
$8,107/mo
Legal disclaimerAll calculations are estimates provided by StreetEasy for informational purposes only. Actual amounts or financing terms may vary. Please contact your mortgage provider for specifics.Taxes
$1,132/mo
Tax abatement
No info
About
Seller’s agent
description
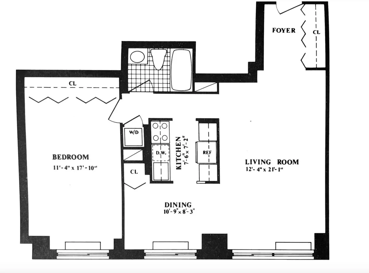
Welcome to Apartment 3A in Evans Tower!
Unit 3A is a fantastic one-bedroom with a spacious dining room, offering the flexibility to convert it into a second bedroom, nursery, or an office, as per your needs.
Spanning 802 square feet, it flaunts excellent conditions for the overall unit, providing you an impeccably organized space with tons of closet throughout the apartment.
Policies
Pets allowed
Cats and dogs allowed
Home features
Central air
Dishwasher
Hardwood floors
View
City
Washer/dryer
Building amenities
Services and facilities
Bike room
Concierge
Doorman
Full-time
Elevator
Live-in super
Package room
Parking
Garage
Storage space
Cold storage, Locker/cage
Wheelchair access
Wellness and recreation
Gym
Swimming pool
Shared outdoor space
Roof deck
About the building
Evans Tower Condominium
171 East 84th Street, New York, NY 10028
219 units
36 stories
1987 built
For sale
2 available units for saleFor rent
2 available units for rentDocuments and permits
View documents and permitsProperty history
- Price Change: No changes
- Days on market: 34 daysThis is the number of days the listing has been on StreetEasy.
| Date | Price | Event |
|---|---|---|
6/26/2024 | $975,000 | Sold by Brown Harris Stevens |
4/25/2024 | $980,000 | In contract |
3/22/2024 | $980,000 | Listed by Brown Harris Stevens |
6/14/2023 | $970,000 | |
4/11/2023 | $1,035,000 |
Past listing photos
Sign in to take a closer look at how this home compares to similar homes.
Explore Upper East Side
Transit
| Location | Distance |
|---|---|
456at 86th St | under 500 feet |
Qat 86th St | 0.17 miles |
6at 77th St | 0.38 miles |
Qat 96th St | 0.5 miles |
6at 96th St | 0.58 miles |
About Upper East Side
Rental prices shown are base rent before any fees. Visit listings for cost and fees breakdown.
SalesMedian asking price
1 bed
$840K
RentalsMedian asking base rent
1 bed
$4,250
When many people think of the Upper East Side, they think of a quiet, tree-lined urban expanse filled with posh residents and purebred dogs. There's some reality behind the neighborhood's old-money image: The blocks between Park and Fifth avenues are home to some of Manhattan's wealthiest residents, many of whom dwell in stately co-ops or sleek new condos overseen by stiffly collared doormen.
But there's a lot more happening on the Upper East Side. Museum Mile throngs with tourists, street artists, and lovers of the arts, drawn to its abundance of high culture. And the eastern side of the neighborhood, toward Yorkville, exhibits a less rarefied character. Second Avenue is home to sports bars, pubs, and some excellent restaurants. A trendy renaissance is in the offing here, sparked by young professionals drawn by some surprisingly good housing prices (for Manhattan). The avenues and commerce-lined thoroughfares can be hectic, but many streets on the Upper East Side are blessedly quiet — just one more way in which this oft-stereotyped neighborhood can be a surprise.

































































































