View this home virtually
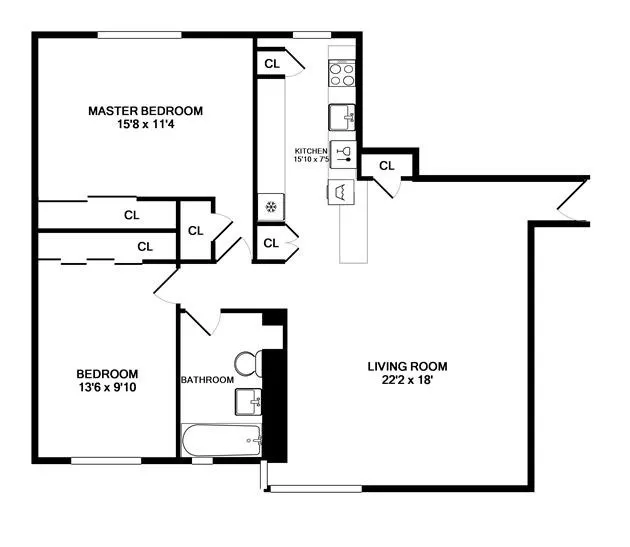
1,080 ft²
$822 per ft²
2 rooms
2 beds
1 bath
Co-op
- Lower East Side
Resale
recorded sale
Sold on 1/3/2024
Verified by closing records
Last listed for $899,000
Listed by
Owner
This home has been saved by 58 users.
Listing by Owner
Maintenance fees
$1,185/mo
Estimated payment
$5,814/mo
Legal disclaimerAll calculations are estimates provided by StreetEasy for informational purposes only. Actual amounts or financing terms may vary. Please contact your mortgage provider for specifics.Taxes
Included in maintenance fees
Tax abatement
No info
About
Buyer’s agent
description
The chic downtown TURN KEY living you have been waiting for...has arrived.
This lofty, newly renovated, 2bd/1ba home offers a huge open concept layout, with skyline/city views, and a double exposure brightening each room throughout the day.
Enjoy a chef's kitchen? Look no further. This fully stocked kitchen offers slate countertops and stainless steel appliances (Kitchenaid, Bosch), including a dishwasher, double wide fridge, gas 5 burner stove with hood, and WASHER / DRYER in Unit.
Policies
Co-purchase allowed
Gifts allowed
Guarantors accepted
Parents buying allowed
Pets allowed
Pied-a-terre allowed
Home features
Dishwasher
Hardwood floors
View
Park, Skyline
Washer/dryer
Building amenities
Services and facilities
Bike room
Elevator
Laundry in building
Parking
Garage
Wellness and recreation
Children's playroom
Gym
Shared outdoor space
Courtyard
About the building
Hillman Coop
530 Grand Street, New York, NY 10002
Complex:
Hillman Coop525 units
12 stories
1949 built
For sale
2 available units for saleFor rent
0 available units for rentDocuments and permits
View documents and permitsProperty history
- Price Change: No changes
- Days on market: 28 daysThis is the number of days the listing has been on StreetEasy.
| Date | Price | Event |
|---|---|---|
1/3/2024 | $888,000 | Sold by Owner |
11/16/2023 | $899,000 | No longer available |
11/15/2023 | $899,000 | In contract |
10/18/2023 | $899,000 | Listed by Owner |
9/10/2014 | $740,000 |
Past listing photos
Sign in to take a closer look at how this home compares to similar homes.
Explore Lower East Side
Transit
| Location | Distance |
|---|---|
FJMZat Essex St | 0.43 miles |
FJMZat Delancey St | 0.47 miles |
Fat East Broadway | 0.49 miles |
Fat 2nd Av | 0.71 miles |
BDat Grand St | 0.71 miles |
About Lower East Side
Rental prices shown are base rent before any fees. Visit listings for cost and fees breakdown.
SalesMedian asking price
2 beds
$1.5M
RentalsMedian asking base rent
2 beds
$5,220
The narrow streets of the Lower East Side were once lined with tenement buildings, shirt factories and bialy shops. Although a few vestiges of the neighborhood's immigrant heritage remain, many of the tenement buildings have been updated and now offer relatively affordable rental options to young New Yorkers looking to live right in the thick of Downtown Manhattan.
There's no getting around it - the LES is a major nightlife destination. In this part of the city, last call is late and often negotiable -- especially if you're a regular. On weekend nights, the neighborhood is packed as crowds overflow from the local bars and take to the streets in search of a late-night falafel fix before heading onto the next party. During the day, the neighborhood chills out as residents nurse their hangovers or head to work slowly after stopping at one of the area's many trendy juice bars or coffee shops.











































































































































