$5,400
For Rent
Base rent only. For total monthly price and additional fees, see .
Rented 7/29/2025
866 ft²
$74 per ft²
3 rooms
1 bed
1 bath
Condo
- Murray Hill
Under NYC law, you can't be charged a broker fee if you didn't hire a broker.
Listed By
This home has been saved by 13 users.
Listing by Luxury Habitat, Corporate Broker, 420 West 24th Street Ste, New York, NY 10011
Unavailable
Rented on 7/29/2025
Days on market
31 days
Last price change
No changes
About
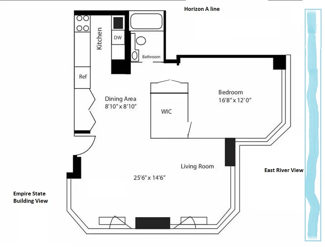
SPECTACULAR corner southeast facing apartment WITH Sunny Pure East Facing RIVER VIEWS
Gorgeous Iconic View of Empire State Building from Western Window.
DIPLOMATS CORPORATE LEASES OK
Come see why Murray Hill is one of Manhattans Best Kept Secrets
The Horizon Condo amenities include:
**FREE GYM, Pool, Jacuzzi, Sauna, Roof Deck, Library, conference rooms and Childrens Play Room.**.
Policies
Pets allowed
Cats and dogs allowed
Home features
Dishwasher
Hardwood floors
View
City, Skyline, Water
Building amenities
Services and facilities
Bike room
Concierge
Doorman
Full-time
Elevator
Laundry in building
Live-in super
Package room
Parking
Garage, Valet
Wellness and recreation
Children's playroom
Gym
Swimming pool
Shared outdoor space
Roof deck
About the building
Horizon
415 East 37th Street, New York, NY 10016
443 units
44 stories
1989 built
Property history
Prices shown are base rent only. For total monthly price and additional fees, see .
| Date | Base rent | Event |
|---|---|---|
7/29/2025 | $5,400 | Rented by Luxury Habitat |
7/3/2025 | $5,400 | In contract |
6/2/2025 | $5,400 | Listed by Luxury Habitat |
2/20/2020 | $5,200 | |
2/14/2020 | $5,200 |
Past listing photos
Sign in to take a closer look at how this home compares to similar homes.
Explore Murray Hill
Transit
| Location | Distance |
|---|---|
Ferryat E 34th Street Ferry Landing | 0.1 miles |
S4567at Grand Central–42nd St | 0.41 miles |
6at 33rd St | 0.54 miles |
6at 28th St | 0.68 miles |
LIRRat Grand Central | 0.69 miles |
About Murray Hill
Rental prices shown are base rent before any fees. Visit listings for cost and fees breakdown.
SalesMedian asking price
1 bed
$749K
RentalsMedian asking base rent
1 bed
$4,976
Murray Hill has a lively energy most hours of the day and night. In the morning, the streets are filled with professionals looking polished in their Brooks Brothers suits as they head to work. Come evening, you'll see the crowds returning home decked out in gym clothes and schlepping bags of take-out dinner and Trader Joe's. The neighborhood has a down-to-earth, casual vibe, and there's always a big game airing at one of the many sports bars along the Third Avenue strip. Many of Murray Hill's residents are renters who come and go, but the place eschews intransigence and maintains a familiar, college-town feel.
Learn more about Murray HillSimilar homes
Prices shown are base rent only and don't include any fees. Visit each listing to see a complete cost breakdown.
Similar Homes looks at ad spend and other factors like location, price, and number of beds and baths.








































































































































