$32,500
For Rent
Base rent only. For total monthly price and additional fees, see .
Rented 10/7/2015
- ft²
8 rooms
4 beds
4.5 baths
Condo
- Lincoln Square
Under NYC law, you can't be charged a broker fee if you didn't hire a broker.
Listed By
Brown Harris Stevens
This home has been saved by 28 users.
Listing by Brown Harris Stevens, Real Estate Principal Office | MLS #: 11472790
Unavailable
Rented on 10/7/2015
Days on market
304 days
Last price change
↓ $5,000 (-13.3%) on 1/20/15
About
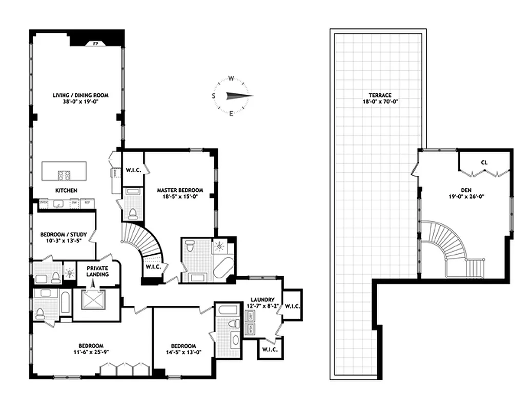
INCREDIBLE DUPLEX PENTHOUSE
This stunning four bedroom penthouse rental offers expansive interior space and a private approximately 1,200 square foot roof terrace, all with picture-perfect views of Lincoln Center and beyond to the Hudson River and Central Park.
From your private landing, a vast entertaining space extends across an open chef's kitchen and spacious living and dining areas, complete with stunning Lincoln Center and city views and a working fireplace.
Policies
Pets allowed
Cats and dogs allowed
Home features
Fireplace
Private outdoor space
Terrace
Washer/dryer
Building amenities
Services and facilities
Bike room
Concierge
Doorman
Full-time
Elevator
Laundry in building
Live-in super
Storage space
Wellness and recreation
No info on wellness and recreation
Shared outdoor space
No info on shared outdoor space
About the building
Liberty Lofts
43 West 64th Street, New York, NY 10023
34 units
13 stories
- built
Property history
Prices shown are base rent only. For total monthly price and additional fees, see .
| Date | Base rent | Event |
|---|---|---|
7/1/2018 | $30,000 | |
10/16/2017 | $30,000 | |
10/7/2015 | $32,500 | Rented by Brown Harris Stevens |
5/26/2015 | $32,500 | Listed by Brown Harris Stevens |
4/24/2015 | $32,500 | No longer available |
Past listing photos
Sign in to take a closer look at how this home compares to similar homes.
Explore Lincoln Square
Transit
| Location | Distance |
|---|---|
1at 66th St–Lincoln Center | under 500 feet |
ABCD1at 59th St–Columbus Circle | 0.2 miles |
BCat 72nd St | 0.3 miles |
NRWat 57th St–7th Av | 0.44 miles |
123at 72nd St | 0.45 miles |
About Lincoln Square
Rental prices shown are base rent before any fees. Visit listings for cost and fees breakdown.
SalesMedian asking price
4 beds
$8.43M
RentalsMedian asking base rent
4 beds
$26,724
Named after and defined by the Lincoln Center for the Performing Arts, Lincoln Square is home to the New York Philharmonic, the New York City Ballet and the Metropolitan Opera, among many other cultural institutions. The neighborhood blends the prewar architecture and and style of the Upper West Side with modern, tall residential buildings. Great subway access at Columbus Circle and proximity to Midtown make this neighborhood popular with those looking to be in the center of it all.
Learn more about Lincoln SquareSimilar homes
Prices shown are base rent only and don't include any fees. Visit each listing to see a complete cost breakdown.
Similar Homes looks at ad spend and other factors like location, price, and number of beds and baths.





























































































































































































