$3,556
For Rent
Base rent only. For total monthly price and additional fees, see .
Rented 6/23/2025
- ft²
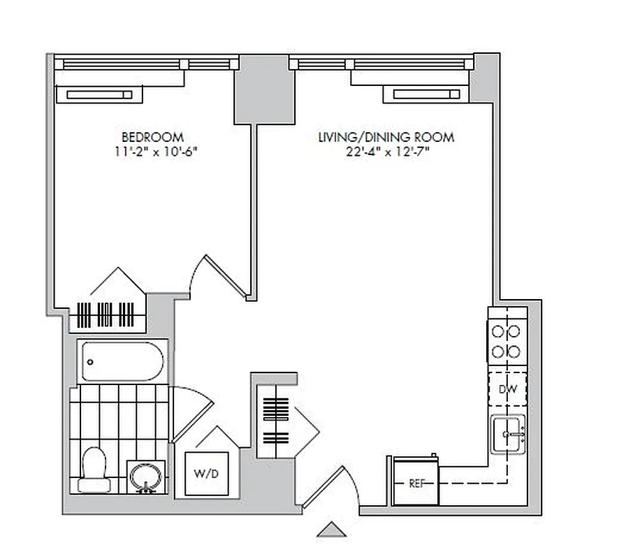
3 rooms
1 bed
1 bath
Rental unit
- Hunters Point
Under NYC law, you can't be charged a broker fee if you didn't hire a broker.
Listed By
The World Wide Group
This home has been saved by 20 users.
Listing by The World Wide Group
Unavailable
Rented on 6/23/2025
Days on market
2 days
Last price change
No changes
About
One bedroom in Long Island City. The building offers a landscaped rooftop with expansive views, a residential lounge with entertainment areas, and a fitness center. A true concierge building, Luna LIC features an attended lobby, on-site valet, live-in super, package storage, and bike room. Eight subway lines are within walking distance: the N, W, and 7 trains located directly around the corner and one station away from the Midtown, and the E, M, R, G, and F are just a few blocks beyond that.
Policies
Sorry, policy info isn’t available right now. Check back later.
Home features
Central air
Dishwasher
Hardwood floors
Washer/dryer
Building amenities
Services and facilities
Bike room
Concierge
Doorman
Elevator
Live-in super
Package room
Wheelchair access
Wellness and recreation
Gym
Shared outdoor space
Roof deck
About the building
Luna LIC
42-15 Crescent Street, Long Island City, NY 11101
124 units
11 stories
2016 built
Property history
Prices shown are base rent only. For total monthly price and additional fees, see .
| Date | Base rent | Event |
|---|---|---|
6/23/2025 | $3,556 | Rented by The World Wide Group |
6/19/2025 | $3,556 | In contract |
6/17/2025 | $3,556 | Listed by The World Wide Group |
Past listing photos
Sign in to take a closer look at how this home compares to similar homes.
Explore Hunters Point
Transit
| Location | Distance |
|---|---|
NW7at Queensboro Plaza | under 500 feet |
EMRat Queens Plaza | 0.15 miles |
EGM7at 23rd St–Ely Av | 0.26 miles |
Fat 21st St | 0.28 miles |
Gat Long Island City–Court Square | 0.35 miles |
Similar homes
Prices shown are base rent only and don't include any fees. Visit each listing to see a complete cost breakdown.
Similar Homes looks at ad spend and other factors like location, price, and number of beds and baths.






























































































































