$6,500
For Rent
Base rent only. For total monthly price and additional fees, see .
Rented 9/13/2025
1,000 ft²
$78 per ft²
4 rooms
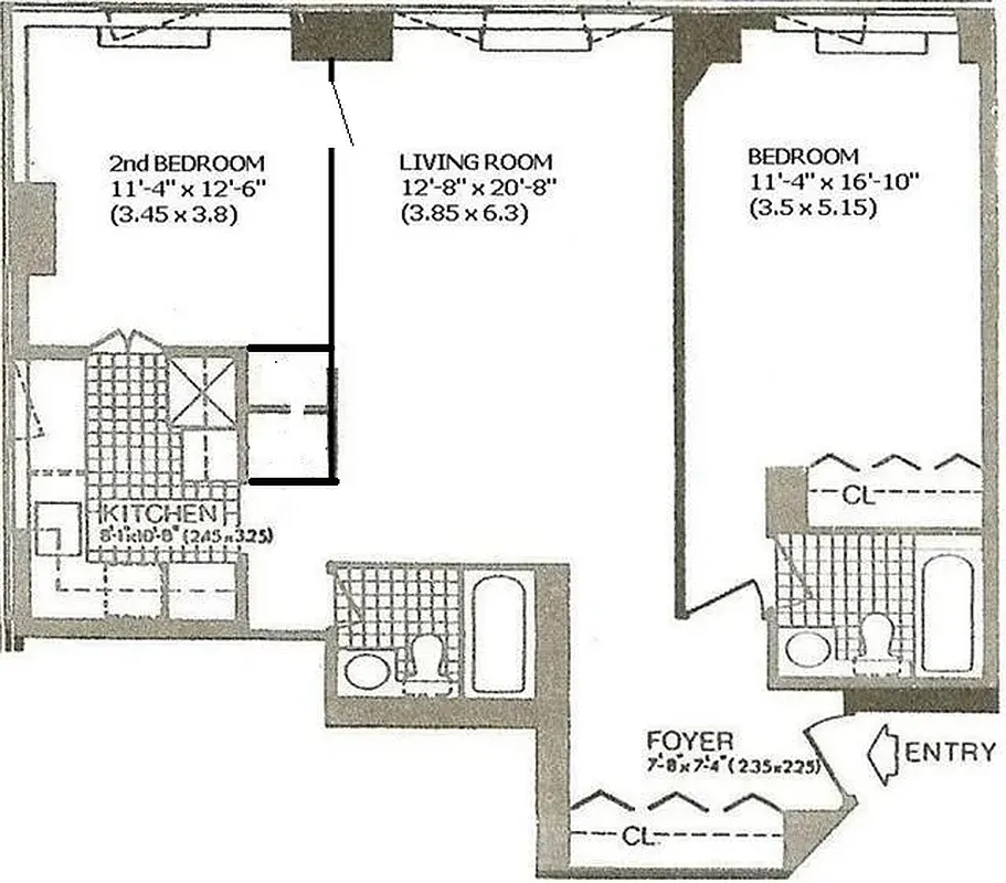
2 beds
2 baths
Condo
- Murray Hill
Under NYC law, you can't be charged a broker fee if you didn't hire a broker.
Listed By
This home has been saved by 13 users.
Listing by Yoram Adin, LREB, Individual Broker, 630 First Avenue Ste, New York, NY 10016
Unavailable
Rented on 9/13/2025
Days on market
37 days
Last price change
No changes
About
2/2 Bedroom full river view
Renovated kitchen, widow in the kitchen.
The Manhattan Place Condominium is a Full service building with 24 hours doorman and concierge.
**Amenities included GYM and Poll, Jacuzzi, Steam room, 2 sun decks, party room, kids play room**
Laundry room, Dry cleaning service in the building.
Parking garage
Building locates next to the UN – United Nations, NYU hospital, School on 36th street and 1st Ave, Ferry 2 blocks a way, entrance to FDR and Midtown Tunnel.
Policies
Sorry, policy info isn’t available right now. Check back later.
Home features
Dishwasher
Hardwood floors
View
Water
Building amenities
Services and facilities
Bike room
Concierge
Doorman
Elevator
Laundry in building
Live-in super
Package room
Parking
Garage, Valet
Storage space
Wellness and recreation
Children's playroom
Gym
Swimming pool
Shared outdoor space
Courtyard
Roof deck
About the building
Manhattan Place
630 1st Avenue, New York, NY 10016
485 units
37 stories
1984 built
Property history
Prices shown are base rent only. For total monthly price and additional fees, see .
| Date | Base rent | Event |
|---|---|---|
9/13/2025 | $6,500 | Rented by Yoram Adin, LREB |
8/29/2025 | $6,500 | In contract |
8/14/2025 | $6,500 | Listed by Yoram Adin, LREB |
8/2/2025 | $6,500 | In contract |
7/11/2025 | $6,500 | Listed by Yoram Adin, LREB |
Past listing photos
Sign in to take a closer look at how this home compares to similar homes.
Explore Murray Hill
Transit
| Location | Distance |
|---|---|
Ferryat E 34th Street Ferry Landing | under 500 feet |
S4567at Grand Central–42nd St | 0.43 miles |
6at 33rd St | 0.52 miles |
6at 28th St | 0.64 miles |
LIRRat Grand Central | 0.71 miles |
About Murray Hill
Rental prices shown are base rent before any fees. Visit listings for cost and fees breakdown.
SalesMedian asking price
2 beds
$1.25M
RentalsMedian asking base rent
2 beds
$5,710
Murray Hill has a lively energy most hours of the day and night. In the morning, the streets are filled with professionals looking polished in their Brooks Brothers suits as they head to work. Come evening, you'll see the crowds returning home decked out in gym clothes and schlepping bags of take-out dinner and Trader Joe's. The neighborhood has a down-to-earth, casual vibe, and there's always a big game airing at one of the many sports bars along the Third Avenue strip. Many of Murray Hill's residents are renters who come and go, but the place eschews intransigence and maintains a familiar, college-town feel.
Learn more about Murray HillSimilar homes
Prices shown are base rent only and don't include any fees. Visit each listing to see a complete cost breakdown.
Similar Homes looks at ad spend and other factors like location, price, and number of beds and baths.






















































































































































































